О проекте
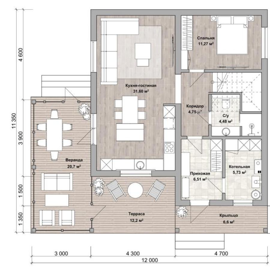
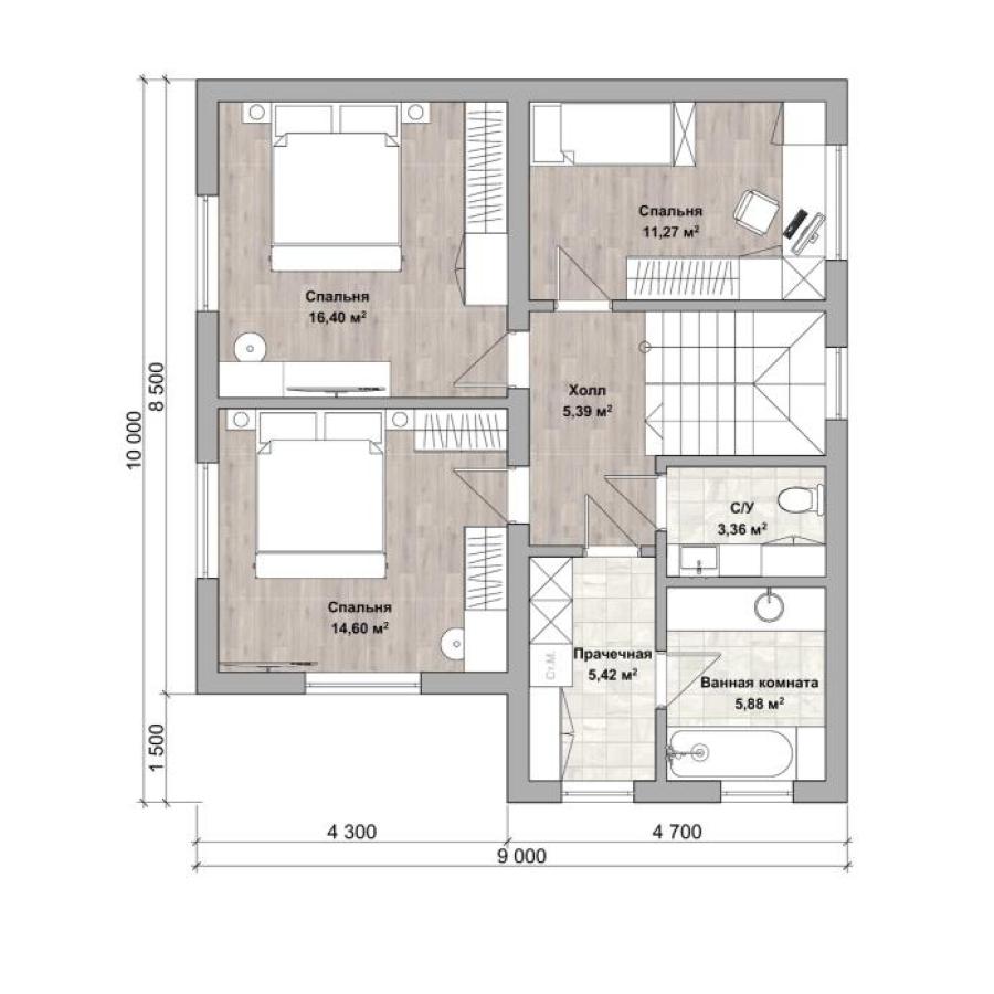
- Площадь дома: 153 м2
- Габаритные размеры дома 8,5 м х 9 м
- Срок строительства: 30 дней
Проект двухэтажного дома. Его украшение – угловая терраса. Рассчитан на проживание 4-7 человек. Будет особенно выигрышно смотреться на видовом участке. Здесь предусмотрено всё для тех, кто ценит современный уровень комфорта. Вход в дом и ниша перед кухней закрыты навесом от осадков. Гостиная совмещена с кухонным уголком и столовой. Есть выход в просторную застеклённую часть террасы. Это главная фишка дома. 1 спальня на первом этаже, 3 на втором. Максимальному удобству служат котельная, совмещённый санузел с душевой кабиной внизу, туалет, ванная и проходная прачечная наверху.
- В данную стоимость входит строительство конструктива дома в базовой комплектации:
- Фундамент - ленточный;
- Наружные и внутренние несущие стены из арболитовых блоков толщиной 300 мм на теплом кладочном растворе;
- Перекрытия - деревянные балки;
- Кровля - металлочерепица;
- На строительство дома мы предлагаем Вам беспроцентную рассрочку платежа, ипотеку и возможность реализовать материнский капитал.
Все работы по договору Вы оплачиваете поэтапно, в подарок от нас Вы получаете проект дома.
Наши архитекторы разместят дом на земельном участке в соответствии с ориентацией по сторонам света. Будет разработана продуманная для Вас планировка рассчитанная для комфортного проживания.
Также вы можете построить дом самостоятельно, заказав у нас только материалы (смотрите товары) или услуги по проектированию, технадзору.














