О проекте
- Площадь дома: 143,52 м2
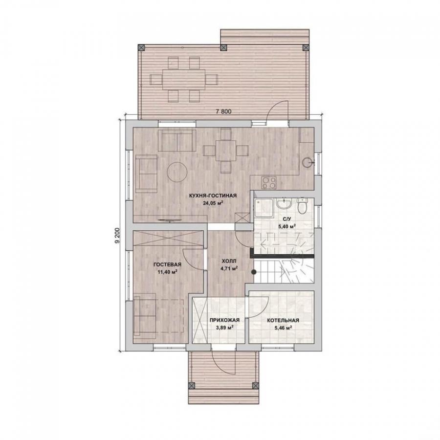
- Габаритные размеры дома 9,2 м х 7,8 м
- Срок строительства: 30 дней
Проект двухэтажного дома для постоянного проживания семьи из 4-6 человек. Здание хорошо впишется в небольшой участок в черте города и в сельской местности будет смотреться уместно . Вход в дом защищён навесом. Котельная обеспечит хозяев нужной температурой воздуха, горячей водой без перерывов. Гостиная с тремя окнами и стеклянной дверью на террасу совмещена с зоной столовой и кухни. Большая крытая терраса в тёплое время года станет любимым местом взрослых и детей. Жилая комната слева у входа может быть гостевой, кабинетом или спальней для членов семьи, которым тяжело подниматься наверх. Ванная с душевой кабиной расположена между кухней и лестницей, используется пространство под пролётом. Второй этаж дома – зона отдыха и восстановления сил. Здесь находятся три спальни разной площади и большая ванная с полноценным окном. К самой маленькой комнате примыкает гардеробная. При желании заказчика наши специалисты сделают зеркальный вариант проекта или поменяют назначение помещений.
В данную стоимость входит строительство конструктива дома в базовой комплектации:
- Фундамент - ленточный;
- Наружные и внутренние несущие стены из арболитовых блоков толщиной 300 мм на теплом кладочном растворе;
- Перекрытия - деревянные балки;
- Кровля - металлочерепица;
На строительство дома мы предлагаем Вам беспроцентную рассрочку платежа, ипотеку и возможность реализовать материнский капитал.
Все работы по договору Вы оплачиваете поэтапно, в подарок от нас Вы получаете проект дома и межэтажную лестницу.
Наши архитекторы разместят дом на земельном участке в соответствии с ориентацией по сторонам света. Будет разработана продуманная для Вас планировка рассчитанная для комфортного проживания.
Также вы можете построить дом самостоятельно, заказав у нас только материалы (смотрите товары) или услуги по проектированию, технадзору.














