О проекте
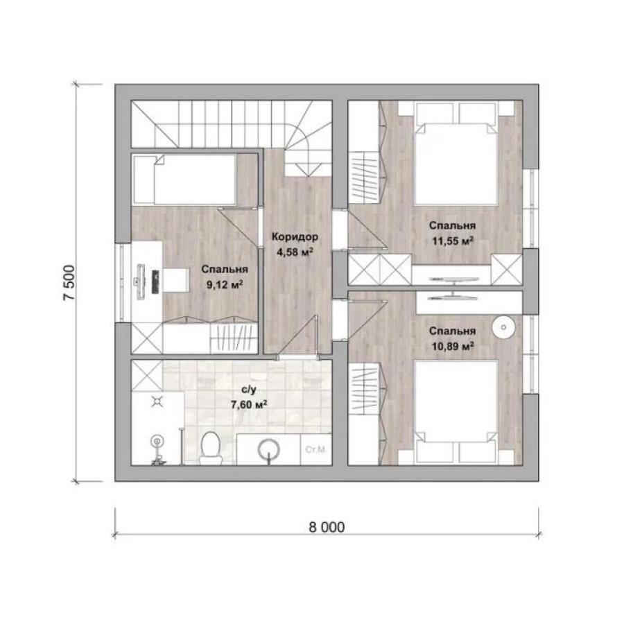
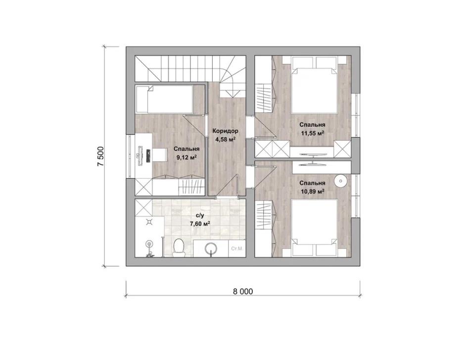
- Площадь дома: 120 м2
- Габаритные размеры дома 8 м х 7,5 м
- Срок строительства: 30 дней
- Проект двухэтажного компактного дома с 4 спальнями. Выглядит современно благодаря комбинированный отделке и подсветке. Поместится на маленьком участке. Вход в дом дружелюбно укрыт навесом, крыльцо выполняет роль террасы. Светлая гостиная совмещена с кухней, здесь же лестница наверх, к 3 спальням. Комната на первом этаже будет кстати маломобильным жильцам. На обоих уровнях есть ванные. Дом небольшой, но в нём могут проживать 5-7 человек. Удобен для семьи из 3 поколений.
- В данную стоимость входит строительство конструктива дома в базовой комплектации:
- Фундамент - ленточный;
- Наружные и внутренние несущие стены из арболитовых блоков толщиной 300 мм на теплом кладочном растворе;
- Перекрытия - деревянные балки;
- Кровля - металлочерепица;
- На строительство дома мы предлагаем Вам беспроцентную рассрочку платежа, ипотеку и возможность реализовать материнский капитал.
Все работы по договору Вы оплачиваете поэтапно, в подарок от нас Вы получаете проект дома и межэтажную лестницу.Наши архитекторы разместят дом на земельном участке в соответствии с ориентацией по сторонам света. Будет разработана продуманная для Вас планировка рассчитанная для комфортного проживания.
Также вы можете построить дом самостоятельно, заказав у нас только материалы (смотрите товары) или услуги по проектированию, технадзору.














