О проекте
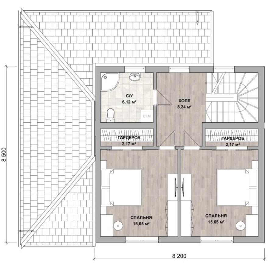
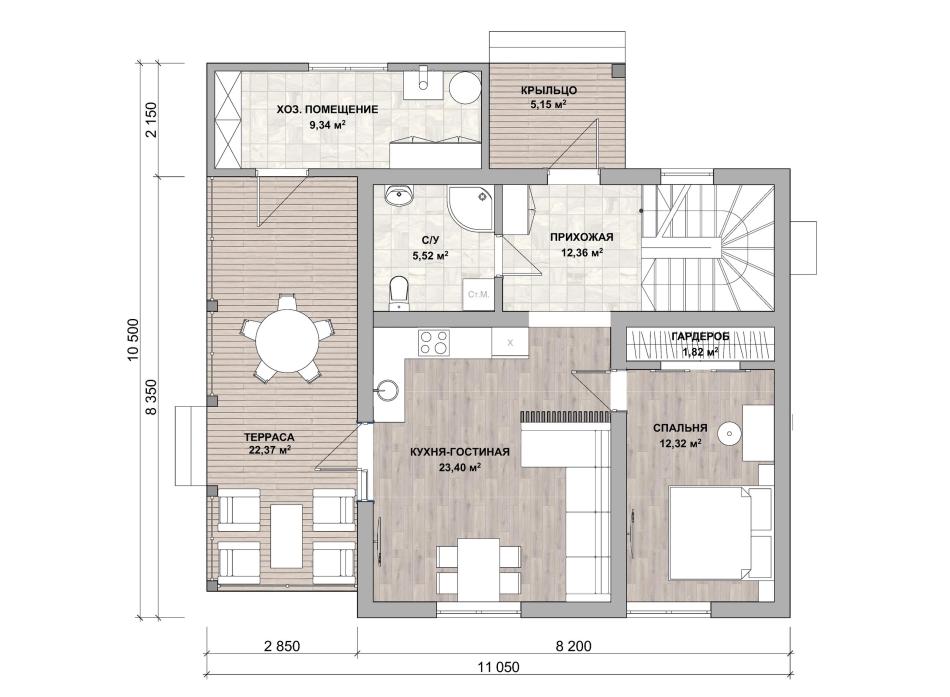
- Площадь дома: 139,4 м2
- Габаритные размеры дома 8,2 м х 8,5 м
- Срок строительства: 30 дней
Проект небольшого двухэтажного дома с крытой террасой – мечта гостеприимной семьи из 3-5 человек. Уютная гостиная совмещена с кухней. Из комнаты двери ведут в спальню с гардеробной и на террасу. Терраса заканчивается хозяйственным помещением с котельной и стеллажами. Второй этаж начинается со светлого холла. Оттуда двери ведут в 2 просторные спальни, в каждая своя гардеробная. На обоих этажах свои ванные комнаты. Дом довольно компактный, подойдёт как для городского участка, так и для загородного.
В данную стоимость входит строительство конструктива дома в базовой комплектации:
- Фундамент - ленточный;
- Наружные и внутренние несущие стены из арболитовых блоков толщиной 300 мм на теплом кладочном растворе;
- Перекрытия - деревянные балки;
- Кровля - металлочерепица;
На строительство дома мы предлагаем Вам беспроцентную рассрочку платежа, ипотеку и возможность реализовать материнский капитал.
Все работы по договору Вы оплачиваете поэтапно, в подарок от нас Вы получаете проект дома и межэтажную лестницу.
Наши архитекторы разместят дом на земельном участке в соответствии с ориентацией по сторонам света. Будет разработана продуманная для Вас планировка рассчитанная для комфортного проживания.
Также вы можете построить дом самостоятельно, заказав у нас только материалы (смотрите товары) или услуги по проектированию, технадзору.














