О проекте
- Площадь дома: 105 м2
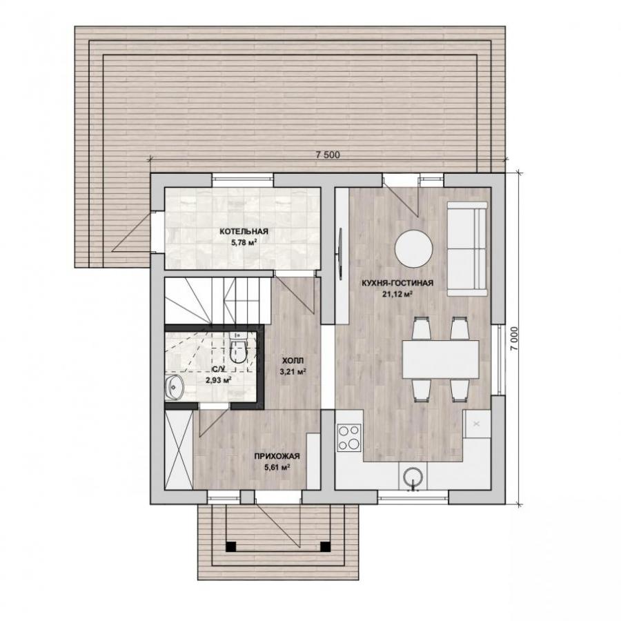
- Габаритные размеры дома 7,5 м х 7 м
- Срок строительства: 30 дней
Проект бюджетного, стильного дома для семьи из 3-5 человек Карниз над входом защищает входную группу от осадков. Из просторной прихожей двери в гостиную, санузел, котельную. Гостиная с кухонным уголком занимает половину первого этажа. За счёт двух больших окон и стеклянных дверей на террасу комната будет очень светлой. Это сделает её визуально больше. По лестнице с окном жильцы поднимутся к трём уютным спальням. Ванная комната с полноценным окном. Хоть ванну вместит, хоть душевую кабину, хоть то и другое. Проект подойдёт молодой семье с детьми, станет настоящим семейным гнёздышком.
В данную стоимость входит строительство конструктива дома в базовой комплектации:
- Фундамент - ленточный;
- Наружные и внутренние несущие стены из арболитовых блоков толщиной 300 мм на теплом кладочном растворе;
- Перекрытия - деревянные балки;
- Кровля - металлочерепица;
На строительство дома мы предлагаем Вам беспроцентную рассрочку платежа, ипотеку и возможность реализовать материнский капитал.
Все работы по договору Вы оплачиваете поэтапно, в подарок от нас Вы получаете проект дома и межэтажную лестницу.
Наши архитекторы разместят дом на земельном участке в соответствии с ориентацией по сторонам света. Будет разработана продуманная для Вас планировка рассчитанная для комфортного проживания.
Также вы можете построить дом самостоятельно, заказав у нас только материалы (смотрите товары) или услуги по проектированию, технадзору.














