О проекте
- Площадь дома: 100,8 м2
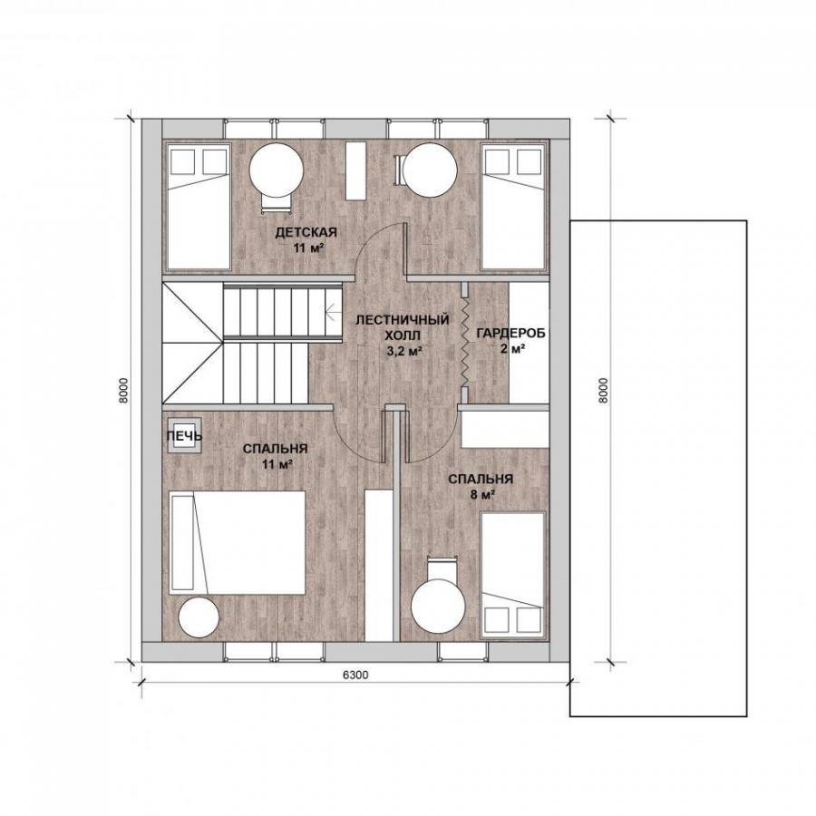
- Габаритные размеры дома 6,3 м х 8 м
- Срок строительства: 30 дней
Вы давно мечтали о компактном домике с мансардой? Этот проект для вас. На жилой площади поместились кухня-гостиная с четырьмя окнами и печью, четыре спальни, ванная и гардеробная. Вместо пятой несущей стены перекрытия второго этажа держатся на двух колоннах и несущих стенах. За счёт такого архитектурного решения здание стало легче, внутри просторнее. Чтобы сохранить погоду в доме, вход в него находится под навесом. Тамбур не пропустит холодный воздух внутрь. Размер дома 6,3 м × 8 м позволит возвести его и в городе, и на дачном участке. Он легко впишется в любой ландшафт, подойдёт для молодой семьи из 5-7 человек.
В данную стоимость входит строительство конструктива дома в базовой комплектации:
- Фундамент - ленточный;
- Наружные и внутренние несущие стены из арболитовых блоков толщиной 300 мм на теплом кладочном растворе;
- Перекрытия - деревянные балки;
- Кровля - металлочерепица;
На строительство дома мы предлагаем Вам беспроцентную рассрочку платежа, ипотеку и возможность реализовать материнский капитал.
Все работы по договору Вы оплачиваете поэтапно, в подарок от нас Вы получаете проект дома и межэтажную лестницу.
Наши архитекторы разместят дом на земельном участке в соответствии с ориентацией по сторонам света. Будет разработана продуманная для Вас планировка рассчитанная для комфортного проживания.
Также вы можете построить дом самостоятельно, заказав у нас только материалы (смотрите товары) или услуги по проектированию, технадзору.














