О проекте
- Площадь дома: 198 м2
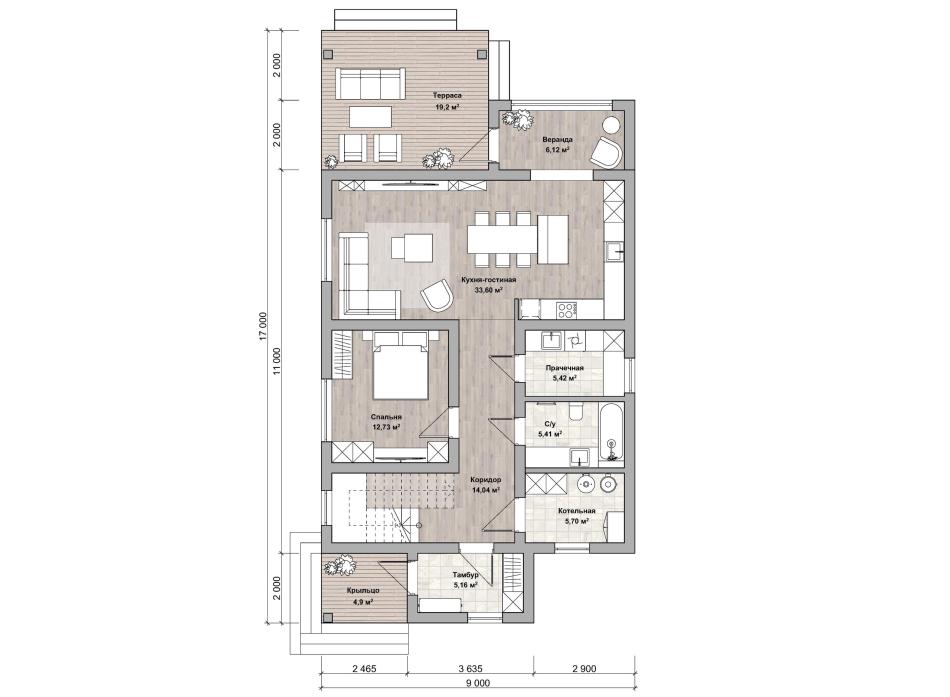
- Габаритные размеры дома 9 м х 11 м
- Срок строительства: 30 дней
Проект двухэтажного дома. Рассчитан на круглогодичное проживание семьи из 4-6 человек. Фасад с улицы с навесом над входом и выступающим тёплым тамбуром. Сторона, выходящая во двор, оборудована крытой террасой, панорамными окнами. На первом этаже большая гостиная-кухня. Из неё можно пройти на веранду, далее на террасу и в сад. Слева от входа одна из спален. Справа – прачечная, санузел и котельная. Наверху 3 спальни, одна из них с выходом в лоджии, там панорамный вид на окрестности. Рядом просторная ванная комната и гардеробная с окном. Система окон обеспечит освещение холла, лестницы, вид на дорожку к дому. Такой дом будет гармонично смотреться и на городском участке, и на загородном.
В данную стоимость входит строительство конструктива дома в базовой комплектации:
- Фундамент - ленточный;
- Наружные и внутренние несущие стены из арболитовых блоков толщиной 300 мм на теплом кладочном растворе;
- Перекрытия - деревянные балки;
- Кровля - металлочерепица;
- На строительство дома мы предлагаем Вам беспроцентную рассрочку платежа, ипотеку и возможность реализовать материнский капитал.
Все работы по договору Вы оплачиваете поэтапно, в подарок от нас Вы получаете проект дома.
Наши архитекторы разместят дом на земельном участке в соответствии с ориентацией по сторонам света. Будет разработана продуманная для Вас планировка рассчитанная для комфортного проживания.
Также вы можете построить дом самостоятельно, заказав у нас только материалы (смотрите товары) или услуги по проектированию, технадзору. - Предложение носит информационный характер и не является публичной офертой.Точную цену уточняйте у менеджеров.














