О проекте
- Площадь дома: 153 м2
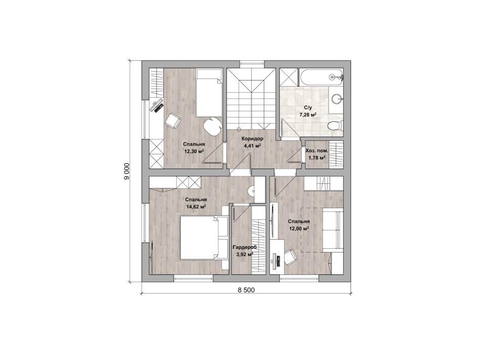
- Габаритные размеры дома 9 м х 8,5 м
- Срок строительства: 30 дней
Проект двухэтажного дома с отделкой из клинкерного кирпича – солидного и уютного. Предназначен для постоянного проживания семьи из 3-5 человек. Половину первого этажа занимает гостиная с кухней и столовой зоной. Рядом гардеробная, котельная и санузел. На втором этаже находятся 3 спальни, ванная, гардеробная и кладовка. 2 большие террасы значительно увеличивают площадь дома. Места для хранения обеспечат порядок и комфорт.
- В данную стоимость входит строительство конструктива дома в базовой комплектации:
- Фундамент - ленточный;
- Наружные и внутренние несущие стены из арболитовых блоков толщиной 300 мм на теплом кладочном растворе;
- Перекрытия - деревянные балки;
- Кровля - металлочерепица;
- На строительство дома мы предлагаем Вам беспроцентную рассрочку платежа, ипотеку и возможность реализовать материнский капитал.
Все работы по договору Вы оплачиваете поэтапно, в подарок от нас Вы получаете проект дома и межэтажную лестницу.
Наши архитекторы разместят дом на земельном участке в соответствии с ориентацией по сторонам света. Будет разработана продуманная для Вас планировка рассчитанная для комфортного проживания.
Также вы можете построить дом самостоятельно, заказав у нас только материалы (смотрите товары) или услуги по проектированию, технадзору.














