О проекте
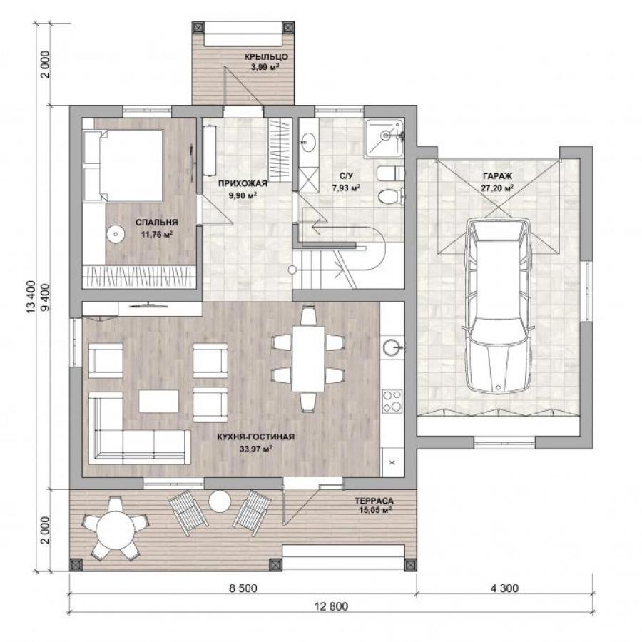
- Площадь дома: 160 м2
- Габаритные размеры дома 9,4 м х 8,5 м
- Срок строительства: 30 дней
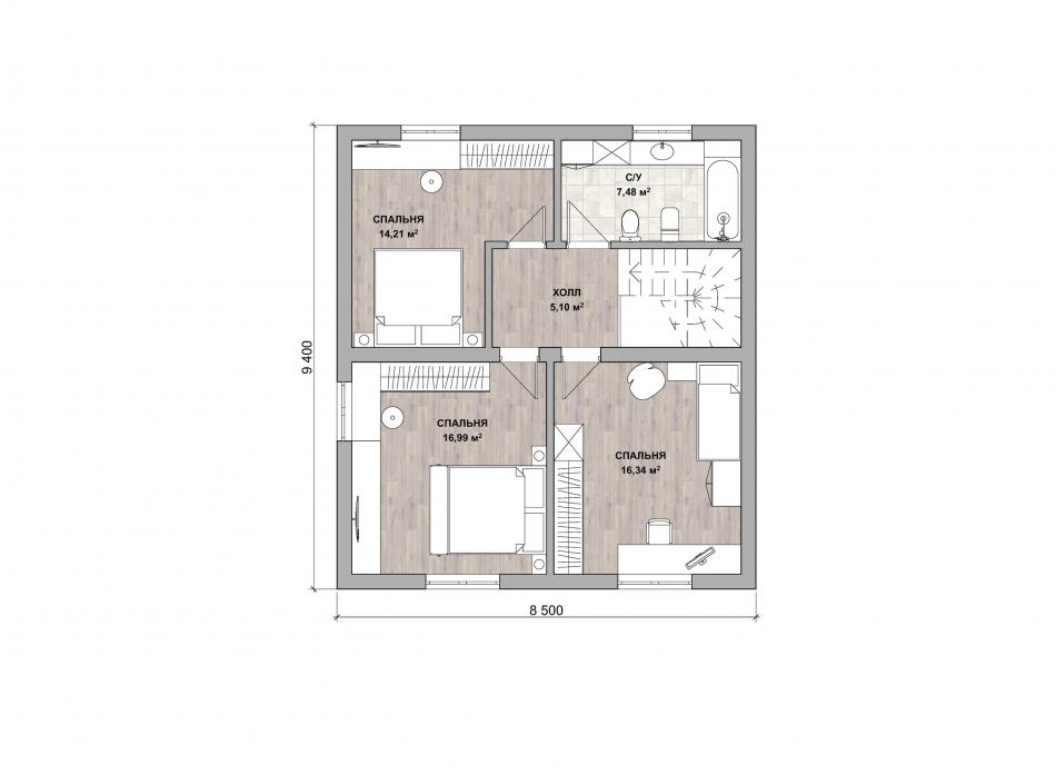
Проект двухэтажного дома с гаражом для семьи из 4-6 человек. Эффектная комбинированная отделка выгодно подчеркивает солидность здания. Продуманная планировка позволяет собираться в кухне-гостиной, проводить больше времени вместе. Крытая терраса увеличивает площадь общего пространства, в тёплое время года станет излюбленным местом домочадцев. Три хозяйские спальни наверху, гостевая на первом этаже, 2 санузла и котельная – в доме есть всё для комфортной жизни и приёма друзей. Гараж под боком – решение вечной проблемы с парковкой, сохранностью автомобиля, безопасной ездой для семьи.
В данную стоимость входит строительство конструктива дома в базовой комплектации:
- Фундамент - ленточный;
- Наружные и внутренние несущие стены из арболитовых блоков толщиной 300 мм на теплом кладочном растворе;
- Перекрытия - деревянные балки;
- Кровля - металлочерепица;
На строительство дома мы предлагаем Вам беспроцентную рассрочку платежа, ипотеку и возможность реализовать материнский капитал.
Все работы по договору Вы оплачиваете поэтапно, в подарок от нас Вы получаете проект дома и межэтажную лестницу.
Наши архитекторы разместят дом на земельном участке в соответствии с ориентацией по сторонам света. Будет разработана продуманная для Вас планировка рассчитанная для комфортного проживания.
Также вы можете построить дом самостоятельно, заказав у нас только материалы (смотрите товары) или услуги по проектированию, технадзору.














