О проекте
- Площадь дома: 120 м2
- Габаритные размеры дома 7,5 м х 8 м
- Срок строительства: 30 дней
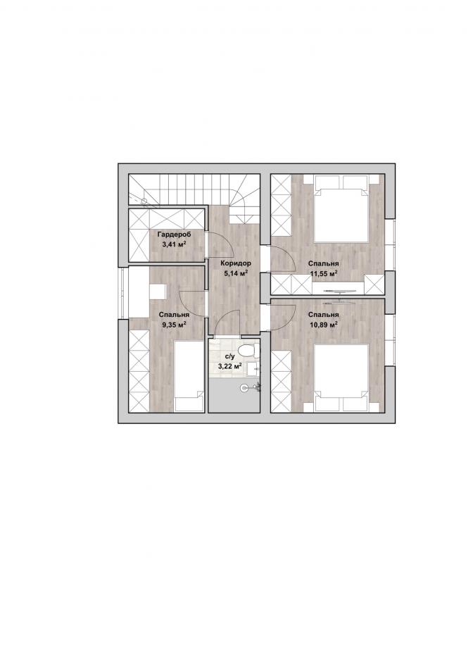
Проект небольшого бюджетного дома с мансардой. Здание хорошо впишется в любой участок земли благодаря своей компактности. Навес и тамбур необходимы, чтобы в доме сохранялись тепло и уют. Гостиная встречает своей парадной частью, от входа не сразу заметна кухня, утопленная в нишу. Свет в помещение попадает через 3 окна с двух сторон, что делает его визуально больше. Лестница наверх органично вписана в пространство и почти не занимает места. Справа от входа находятся котельная, ванная и гостевая спальня. В мансарде разместились 3 жилые комнаты, гардеробная и санузел. Дом подойдем семье из 4-6 человек для постоянного проживания или в качестве дачи.
В данную стоимость входит строительство конструктива дома в базовой комплектации:
- Фундамент - ленточный;
- Наружные и внутренние несущие стены из арболитовых блоков толщиной 300 мм на теплом кладочном растворе;
- Перекрытия - деревянные балки;
- Кровля - металлочерепица;
На строительство дома мы предлагаем Вам беспроцентную рассрочку платежа, ипотеку и возможность реализовать материнский капитал.
Все работы по договору Вы оплачиваете поэтапно, в подарок от нас Вы получаете проект дома и межэтажную лестницу.
Наши архитекторы разместят дом на земельном участке в соответствии с ориентацией по сторонам света. Будет разработана продуманная для Вас планировка рассчитанная для комфортного проживания.
Также вы можете построить дом самостоятельно, заказав у нас только материалы (смотрите товары) или услуги по проектированию, технадзору.














