О проекте
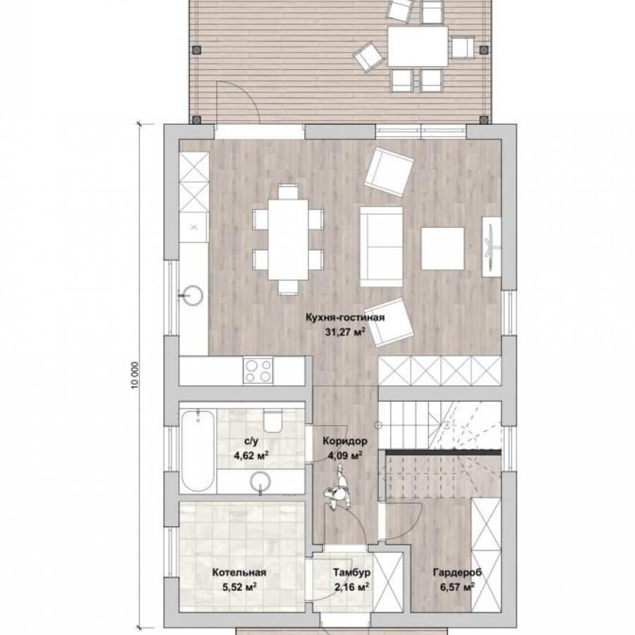
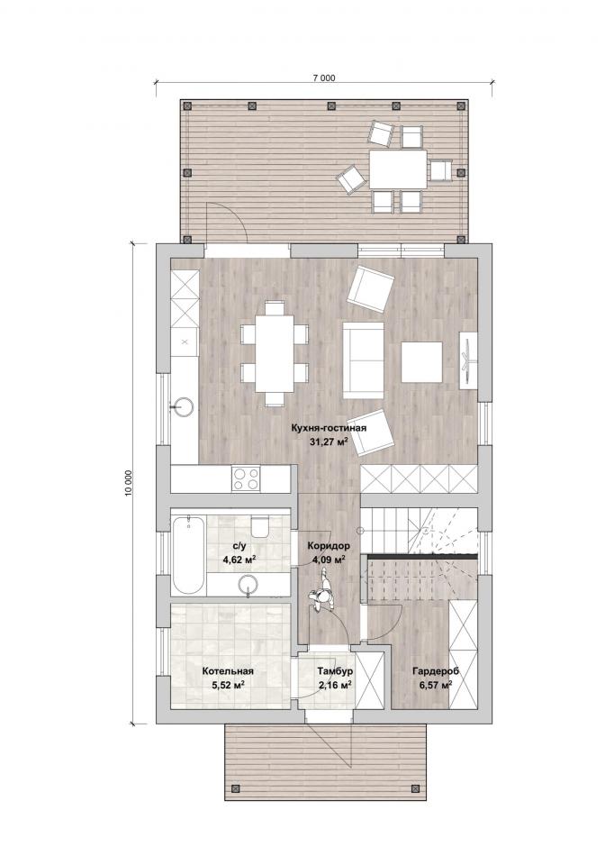
- Площадь дома: 140 м2
- Габаритные размеры дома 7 м х 10 м
- Срок строительства: 30 дней
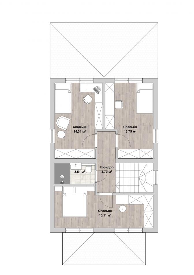
Проект шириной всего 7 метров для узкого, небольшого участка. Навес над входом, тамбур и котельная обеспечат независимость от капризов погоды. Светлая гостиная-кухня с 3 окнами и стеклянными дверями на крытую террасу станет сердцем дома. Гардеробная расширена за счёт пространства под лестницей. На каждом этаже своя ванная комната. Ступеньки и холлы днём освещаются из окна. Наверху 3 просторные спальни, звукоизоляция усилена за счёт шкафов. Полноценный дом для постоянного проживания или дачи. Семья из 3-5 человек разместится здесь с комфортом.
В данную стоимость входит строительство конструктива дома в базовой комплектации:
- Фундамент - ленточный;
- Наружные и внутренние несущие стены из арболитовых блоков толщиной 300 мм на теплом кладочном растворе;
- Перекрытия - деревянные балки;
- Кровля - металлочерепица;
На строительство дома мы предлагаем Вам беспроцентную рассрочку платежа, ипотеку и возможность реализовать материнский капитал.
Все работы по договору Вы оплачиваете поэтапно, в подарок от нас Вы получаете проект дома и межэтажную лестницу.
Наши архитекторы разместят дом на земельном участке в соответствии с ориентацией по сторонам света. Будет разработана продуманная для Вас планировка рассчитанная для комфортного проживания.
Также вы можете построить дом самостоятельно, заказав у нас только материалы (смотрите товары) или услуги по проектированию, технадзору.














