О проекте
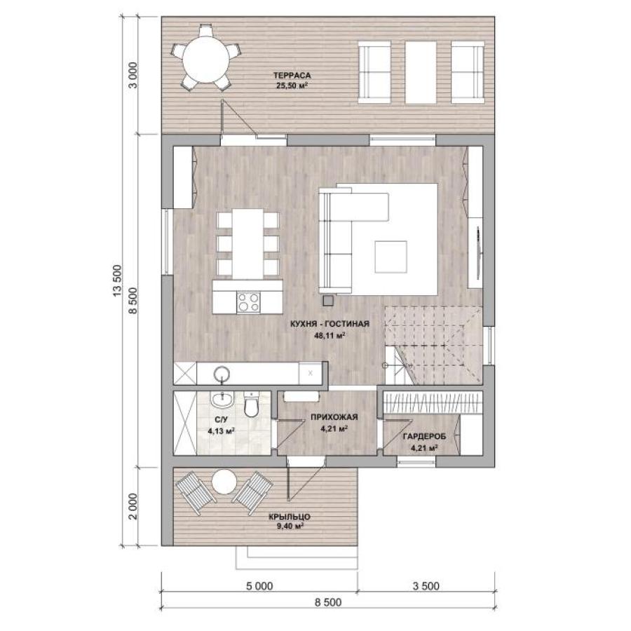
- Площадь дома: 144,5 м2
- Габаритные размеры дома 8,5 м х 8,5 м
- Срок строительства: 30 дней
Проект двухэтажного дома для небольшой семьи. Подойдет для загородной жизни, хорошо впишется в городской участок. Здесь соединились простота, комфорт, эргономичность. Гостиная площадью 50 м2 соединена с кухней и столовой, имеет выход на террасу. Панорамные окна наполняют пространство светом и воздухом. На втором этаже расположены 2 просторные спальни и кабинет. Для комфорта жильцов предусмотрены 2 гардеробные и 2 санузла.
В данную стоимость входит строительство конструктива дома в базовой комплектации:
- Фундамент - ленточный;
- Наружные и внутренние несущие стены из арболитовых блоков толщиной 300 мм на теплом кладочном растворе;
- Перекрытия - деревянные балки;
- Кровля - металлочерепица;
На строительство дома мы предлагаем Вам беспроцентную рассрочку платежа, ипотеку и возможность реализовать материнский капитал.
Все работы по договору Вы оплачиваете поэтапно, в подарок от нас Вы получаете проект дома и межэтажную лестницу.
Наши архитекторы разместят дом на земельном участке в соответствии с ориентацией по сторонам света. Будет разработана продуманная для Вас планировка рассчитанная для комфортного проживания.
Также вы можете построить дом самостоятельно, заказав у нас только материалы (смотрите товары) или услуги по проектированию, технадзору.














