О проекте
- Площадь дома: 112 м2
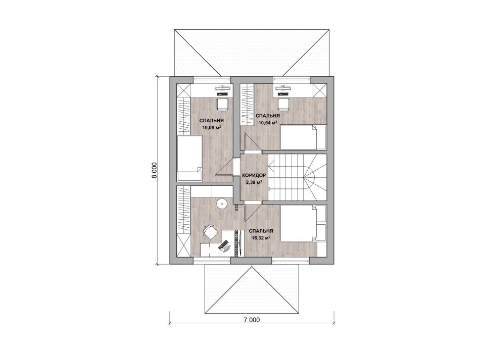
- Габаритные размеры дома 8 м х 7 м
- Срок строительства: 30 дней
- Проект двухэтажного дома для молодой семьи из 3-4 человек. Впишется в любой участок благодаря размерам. Украсит улицу симпатичным фасадом с экологичной отделкой и подсветкой. Скромные габариты, бюджетная цена и все признаки комфорта. Гостиная-кухня с выходом на террасу, 3 спальни, ванная комната и котельная обеспечат хозяевам уют и тепло.
В данную стоимость входит строительство конструктива дома в базовой комплектации: - Фундамент - ленточный;
- Наружные и внутренние несущие стены из арболитовых блоков толщиной 300 мм на теплом кладочном растворе;
- Перекрытия - деревянные балки;
- Кровля - металлочерепица;
-
На строительство дома мы предлагаем Вам беспроцентную рассрочку платежа, ипотеку и возможность реализовать материнский капитал.
Все работы по договору Вы оплачиваете поэтапно, в подарок от нас Вы получаете проект дома и межэтажную лестницу.
Наши архитекторы разместят дом на земельном участке в соответствии с ориентацией по сторонам света. Будет разработана продуманная для Вас планировка рассчитанная для комфортного проживания.
Также вы можете построить дом самостоятельно, заказав у нас только материалы (смотрите товары) или услуги по проектированию, технадзору.














