О проекте
- Площадь дома: 162 м2
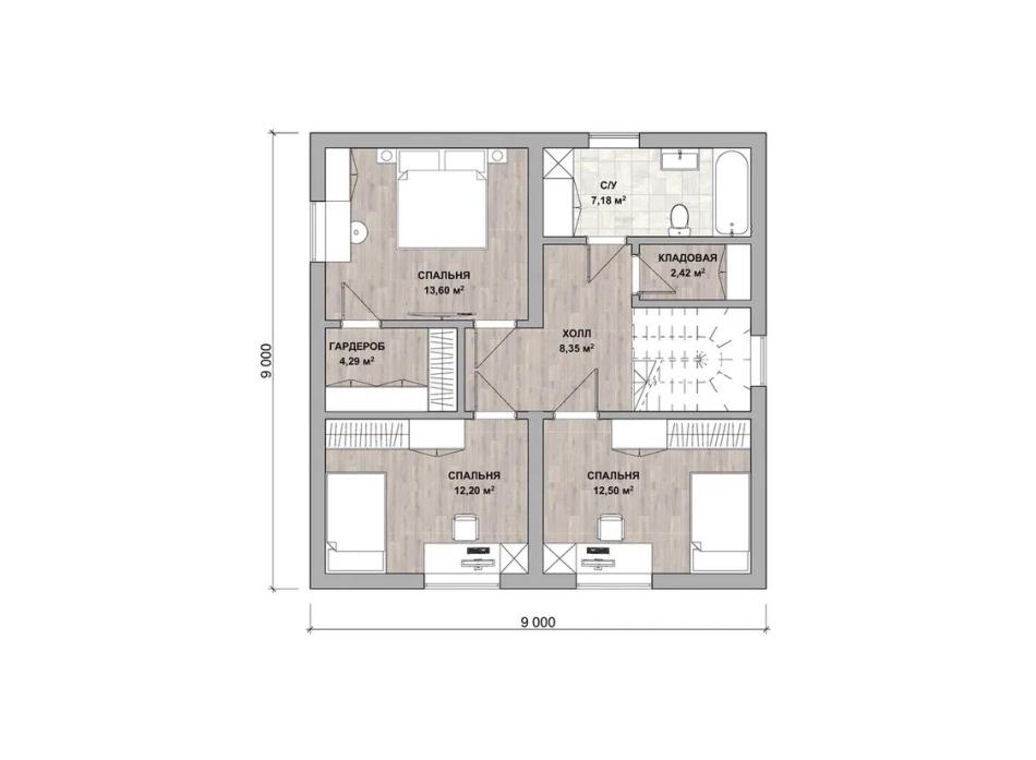
- Габаритные размеры дома 9 м х 9 м
- Срок строительства: 30 дней
- Проект двухэтажного дома с угловой террасой для семьи с амбициями. Просторная гостиная совмещена со столовой и кухней. Выход на террасу удваивает размер помещения. Пристройка позволяет развести по интересам компанию, демонстрирует достаток и гостеприимство до входа в дом. Предусмотрены 3 спальни, 2 ванные, 2 гардеробные, кладовка, котельная и большая прихожая. Есть всё для комфортной автономной жизни 3-6 человек. Плоская крыша, вытянутые окна, комбинированная отделка придают зданию современный вид.
В данную стоимость входит строительство конструктива дома в базовой комплектации: - Фундамент - ленточный;
- Наружные и внутренние несущие стены из арболитовых блоков толщиной 300 мм на теплом кладочном растворе;
- Перекрытия - деревянные балки;
- Кровля - металлочерепица;
-
На строительство дома мы предлагаем Вам беспроцентную рассрочку платежа, ипотеку и возможность реализовать материнский капитал.
Все работы по договору Вы оплачиваете поэтапно, в подарок от нас Вы получаете проект дома и межэтажную лестницу.
Наши архитекторы разместят дом на земельном участке в соответствии с ориентацией по сторонам света. Будет разработана продуманная для Вас планировка рассчитанная для комфортного проживания.
Также вы можете построить дом самостоятельно, заказав у нас только материалы (смотрите товары) или услуги по проектированию, технадзору.














