О проекте
- Площадь дома: 161,5 м2
- Габаритные размеры дома 8,5 м х 9,5 м
- Срок строительства: 30 дней
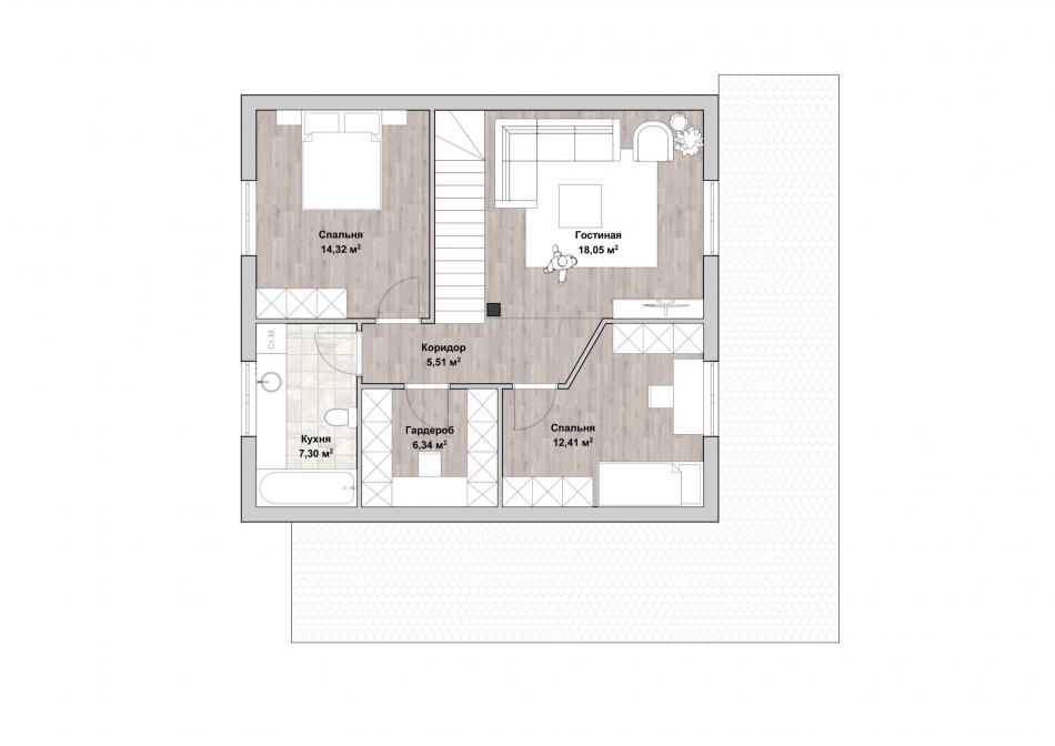
Симпатичный двухэтажный дом с продуманной до мелочей планировкой. Здесь 2 гостиные, 2 спальни, 2 ванные комнаты. Терраса закрывает входы с 2 сторон и образует зону отдыха. Предусмотрены гостевая спальня, камин для уюта и дублирования системы отопления. Место под лестницей на второй этаж приспособлено под кладовую. Кладовка и гардеробная вдвоём точно организуют порядок в доме. Котельная позаботится о микроклимате. Семье из 3-5 человек будет комфортно жить в таком домике круглый год или в дачный сезон. Размеры здания позволяют вписать его и в городской участок, и в загородный.
В данную стоимость входит строительство конструктива дома в базовой комплектации: - Фундамент - ленточный;
- Наружные и внутренние несущие стены из арболитовых блоков толщиной 300 мм на теплом кладочном растворе;
- Перекрытия - деревянные балки;
- Кровля - металлочерепица;
-
На строительство дома мы предлагаем Вам беспроцентную рассрочку платежа, ипотеку и возможность реализовать материнский капитал.
Все работы по договору Вы оплачиваете поэтапно, в подарок от нас Вы получаете проект дома и межэтажную лестницу.
Наши архитекторы разместят дом на земельном участке в соответствии с ориентацией по сторонам света. Будет разработана продуманная для Вас планировка рассчитанная для комфортного проживания.
Также вы можете построить дом самостоятельно, заказав у нас только материалы (смотрите товары) или услуги по проектированию, технадзору.














