О проекте
- Площадь дома: 170 м2
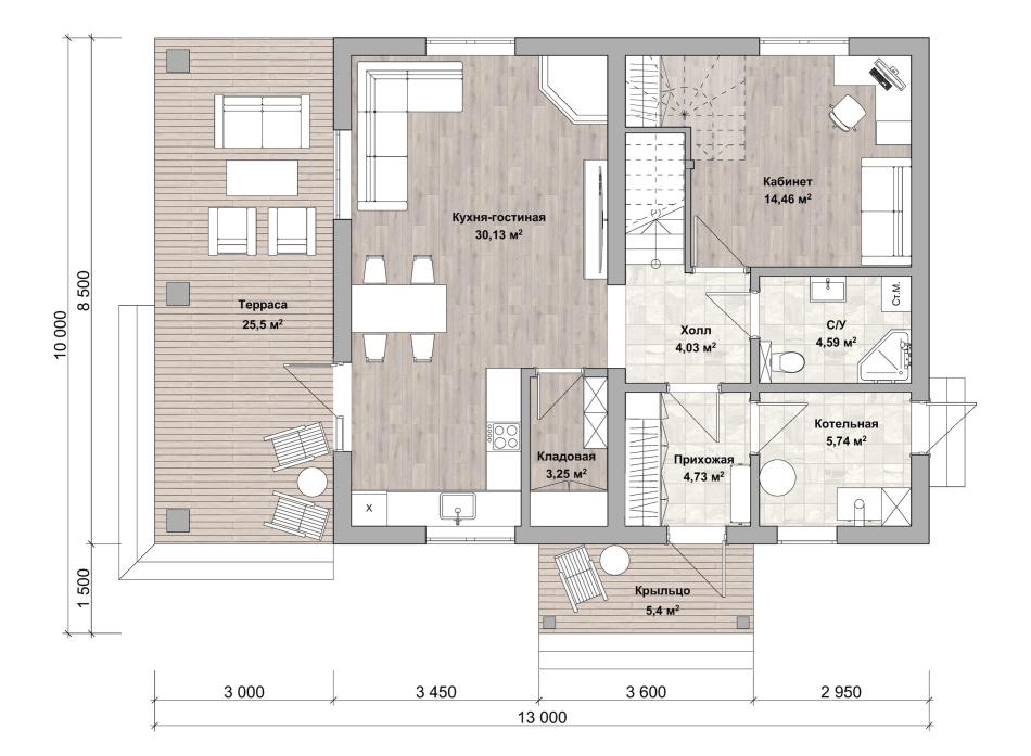
- Габаритные размеры дома 8,5 м х 10 м
- Срок строительства: 30 дней
Проект двухэтажного дома для круглогодичного проживания. Разработан с учётом наиболее частых запросов заказчиков. Светлая гостиная с 2 обычными и 2 панорамными окнами, выходом на крытую террасу. Угловой камин согреет и придаст уют. Кухня находится в нише, не бросается в глаза. Рядом с ней кладовка для припасов. На первом этаже также расположены кабинет, ванная, котельная с запасным выходом. Верхний этаж предусматривает 3 спальни от 13 до 18 метров, гардеробную и большую ванную комнату. Дом подойдёт как для городского участка, так и для загородной резиденции.
- В данную стоимость входит строительство конструктива дома в базовой комплектации:
- Фундамент - ленточный;
- Наружные и внутренние несущие стены из арболитовых блоков толщиной 300 мм на теплом кладочном растворе;
- Перекрытия - деревянные балки;
- Кровля - металлочерепица;
- На строительство дома мы предлагаем Вам беспроцентную рассрочку платежа, ипотеку и возможность реализовать материнский капитал.
Все работы по договору Вы оплачиваете поэтапно, в подарок от нас Вы получаете проект дома и межэтажную лестницу.
Наши архитекторы разместят дом на земельном участке в соответствии с ориентацией по сторонам света. Будет разработана продуманная для Вас планировка рассчитанная для комфортного проживания.
Также вы можете построить дом самостоятельно, заказав у нас только материалы (смотрите товары) или услуги по проектированию, технадзору.














