О проекте
- Площадь дома: 140 м2
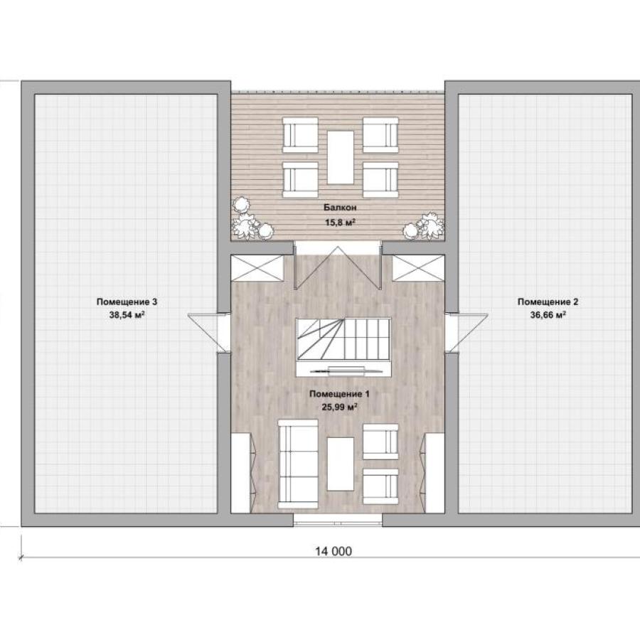
- Габаритные размеры дома 10 м х 14 м
- Срок строительства: 30 дней
Проект одноэтажного дома с гаражом для семьи из 3-5 человек. Его особенность – удачное использование пространства под крышей. Там устроена вторая гостиная с большой лоджией. Её же можно использовать как гостевую комнату, кабинет или библиотеку. Справа и слева закрытые бытовые помещения. Внизу расположились 3 спальни, кухня-гостиная с камином и выходом на крытую террасу. 2 санузла и котельная обеспечивают в здании комфорт круглый год. Проект подойдёт для городского участка, дачи, загородного дома.
- В данную стоимость входит строительство конструктива дома в базовой комплектации:
- Фундамент - ленточный;
- Наружные и внутренние несущие стены из арболитовых блоков толщиной 300 мм на теплом кладочном растворе;
- Перекрытия - деревянные балки;
- Кровля - металлочерепица;
- На строительство дома мы предлагаем Вам беспроцентную рассрочку платежа, ипотеку и возможность реализовать материнский капитал.
Все работы по договору Вы оплачиваете поэтапно, в подарок от нас Вы получаете проект дома.
Наши архитекторы разместят дом на земельном участке в соответствии с ориентацией по сторонам света. Будет разработана продуманная для Вас планировка рассчитанная для комфортного проживания.
Также вы можете построить дом самостоятельно, заказав у нас только материалы (смотрите товары) или услуги по проектированию, технадзору.














