О проекте
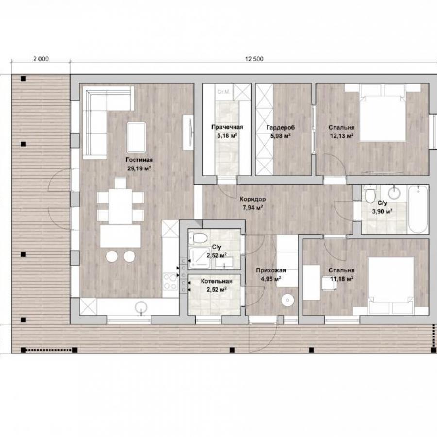
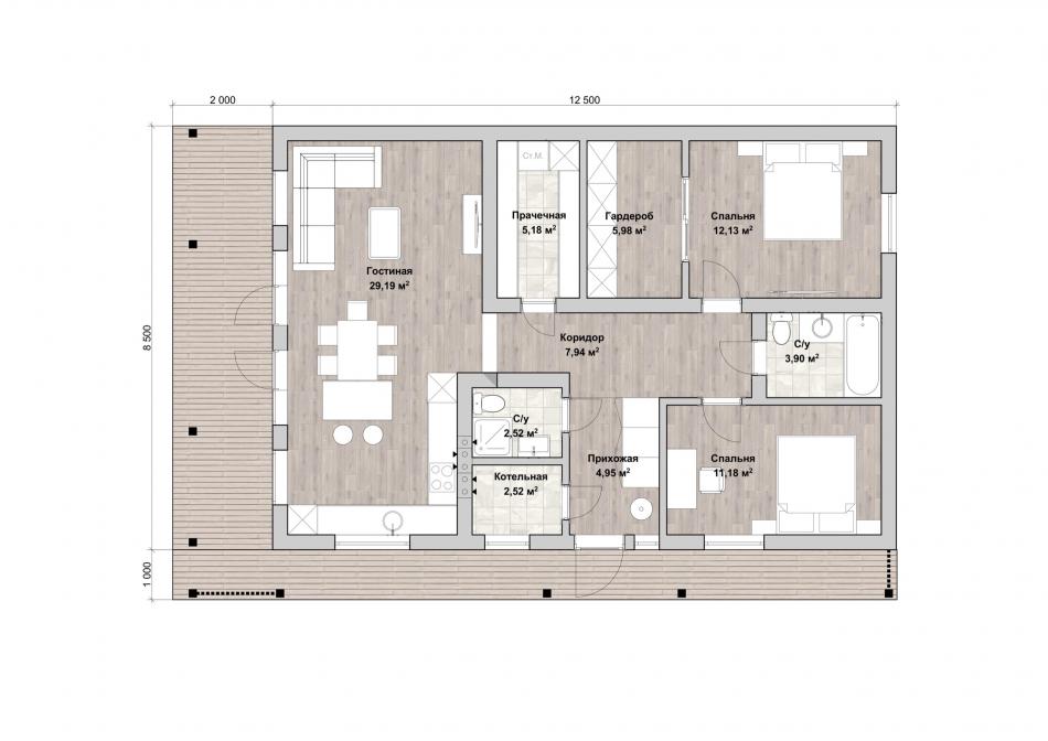
- Площадь дома: 106,25 м2
- Габаритные размеры дома 8,5 м х 12,5 м
- Срок строительства: 30 дней
Проект одноэтажного дома для комфортной жизни небольшой семьи. Толстые стены и продуманная планировка обеспечат домочадцам уют и полноценный отдых. Дом будет хорош как на городском участке, так и для автономной жизни за городом.
В данную стоимость входит строительство конструктива дома в базовой комплектации:
- Фундамент - ленточный;
- Наружные и внутренние несущие стены из арболитовых блоков толщиной 300 мм на теплом кладочном растворе;
- Перекрытия - деревянные балки;
- Кровля - металлочерепица;
На строительство дома мы предлагаем Вам беспроцентную рассрочку платежа, ипотеку и возможность реализовать материнский капитал.
Все работы по договору Вы оплачиваете поэтапно, в подарок от нас Вы получаете проект дома и межэтажную лестницу.
Наши архитекторы разместят дом на земельном участке в соответствии с ориентацией по сторонам света. Будет разработана продуманная для Вас планировка рассчитанная для комфортного проживания.
Также вы можете построить дом самостоятельно, заказав у нас только материалы (смотрите товары) или услуги по проектированию, технадзору.













