О проекте
- Площадь дома: 201 м2
- Габаритные размеры дома 11,2 м х 9 м
- Срок строительства: 30 дней
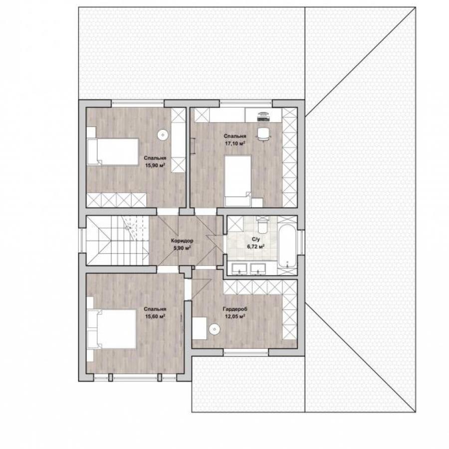
Проект двухэтажного дома с гаражом, навесом для авто, небольшой террасой у входа. Просторная гостиная совмещена с кухней и столовой зоной. Сообщается с террасой под навесом, откуда можно пройти в гараж. 3 спальни для семьи расположены на втором этаже. В доме для удобства проживающих кабинет, гардеробная, 2 ванные, котельная.
В данную стоимость входит строительство конструктива дома в базовой комплектации:
- Фундамент - ленточный;
- Наружные и внутренние несущие стены из арболитовых блоков толщиной 300 мм на теплом кладочном растворе;
- Перекрытия - деревянные балки;
- Кровля - металлочерепица;
На строительство дома мы предлагаем Вам беспроцентную рассрочку платежа, ипотеку и возможность реализовать материнский капитал.
Все работы по договору Вы оплачиваете поэтапно, в подарок от нас Вы получаете проект дома и межэтажную лестницу.
Наши архитекторы разместят дом на земельном участке в соответствии с ориентацией по сторонам света. Будет разработана продуманная для Вас планировка рассчитанная для комфортного проживания.
Также вы можете построить дом самостоятельно, заказав у нас только материалы (смотрите товары) или услуги по проектированию, технадзору.














