О проекте
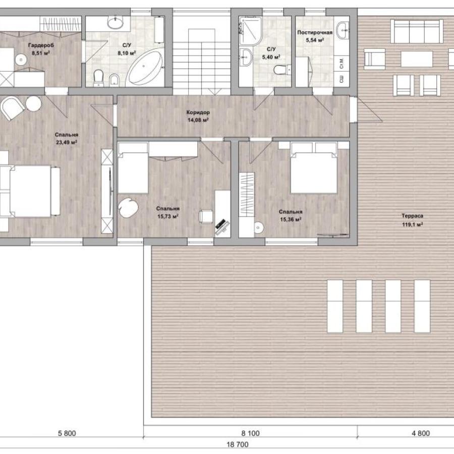
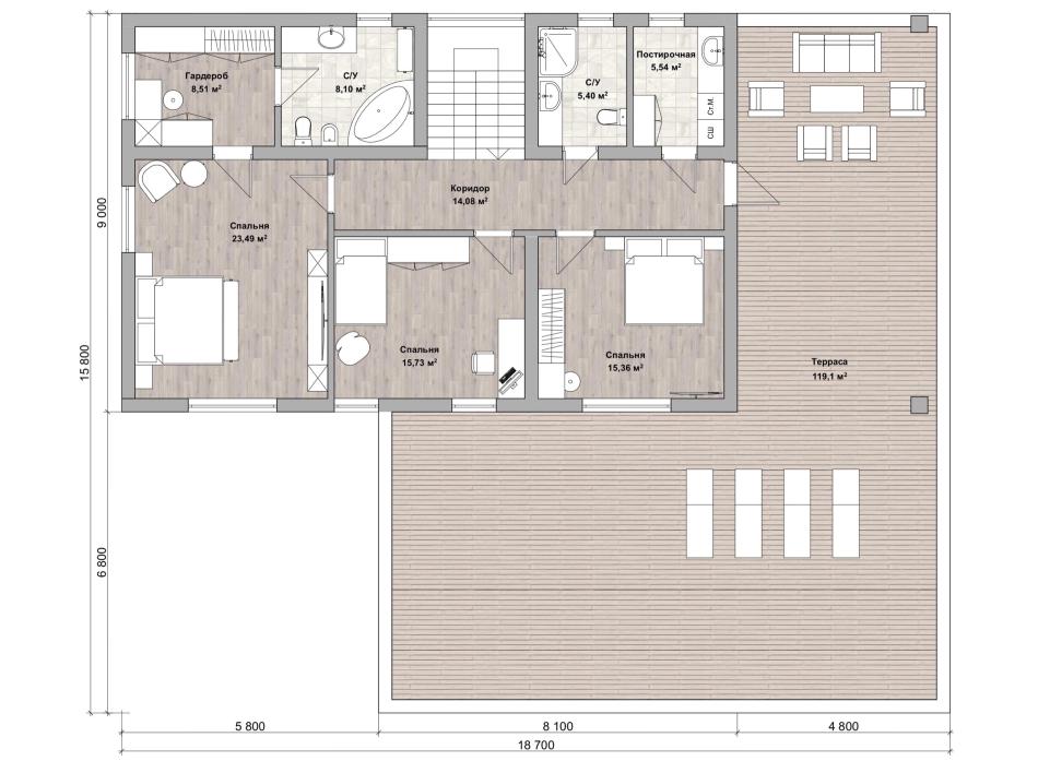
- Площадь дома: 336 м2
- Габаритные размеры дома 9 м х 18 м
- Срок строительства: 30 дней
Проект для семьи, которая ценит и может себе позволить настоящее удобство. 2 этажа комфорта, стиля. В доме гостиная площадью 60 м². Часть её занимают столовая и кухня с кладовкой. Собственный СПА с парной и комнатой отдыха. Для удобства хозяев 4 спальни, 3 санузла, 2 гардеробные, гараж на 2 авто, котельная. Панорамные окна и три террасы украшают здание. Одна огибает гостиную, на неё можно выйти с 2 сторон. К СПА примыкает вторая терраса. Третья находится на втором этаже.
Проект двухэтажного дома для семьи из 4-6 человек. Компактный, с полным набором удобств. Удачное внешнее оформление клинкерным кирпичом придает зданию солидность. Светлая гостиная совмещена с кухней, там 3 окна и стеклянные двери для выхода на крытую террасу. В доме 4 спальни: одна на первом этаже, 3 на втором. Для комфорта жильцов предусмотрены 2 ванные комнаты, гардеробная и котельная. Прихожая, навесы над крыльцом и террасой особенно ценны для холодного времени года.
- В данную стоимость входит строительство конструктива дома в базовой комплектации:
- Фундамент - ленточный;
- Наружные и внутренние несущие стены из арболитовых блоков толщиной 300 мм на теплом кладочном растворе;
- Перекрытия - деревянные балки;
- Кровля - металлочерепица;
- На строительство дома мы предлагаем Вам беспроцентную рассрочку платежа, ипотеку и возможность реализовать материнский капитал.
Все работы по договору Вы оплачиваете поэтапно, в подарок от нас Вы получаете проект дома и межэтажную лестницу.
Наши архитекторы разместят дом на земельном участке в соответствии с ориентацией по сторонам света. Будет разработана продуманная для Вас планировка рассчитанная для комфортного проживания.
Также вы можете построить дом самостоятельно, заказав у нас только материалы (смотрите товары) или услуги по проектированию, технадзору.














