О проекте
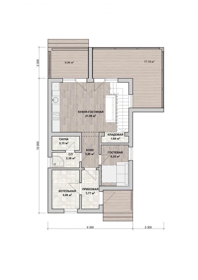
- Площадь дома: 126 м2
- Габаритные размеры дома 10 м х 6,3 м
- Срок строительства: 30 дней
Проект дачного дома нового поколения. Максимальная близость к природе и защищённость от капризов погоды. Предусмотрены 2 спальни на втором этаже и 1 на первом. 2 ванные для удобства жильцов на обоих этажах, одна из них с сауной. Котельная обеспечит комфорт в любой сезон. В гостиной второй свет, много воздуха и света. Здесь же кухонная зона и кладовая. Выход в застеклённую террасу удваивает площадь комнаты и позволяет любоваться красотами природы при любой температуре за окном. Идеальный дом для загородного отдыха семьи или компании из 4-6 человек
В данную стоимость входит строительство конструктива дома в базовой комплектации:
- Фундамент - ленточный;
- Наружные и внутренние несущие стены из арболитовых блоков толщиной 300 мм на теплом кладочном растворе;
- Перекрытия - деревянные балки;
- Кровля - металлочерепица;
-
На строительство дома мы предлагаем Вам беспроцентную рассрочку платежа, ипотеку и возможность реализовать материнский капитал.
Все работы по договору Вы оплачиваете поэтапно, в подарок от нас Вы получаете проект дома и межэтажную лестницу.
Наши архитекторы разместят дом на земельном участке в соответствии с ориентацией по сторонам света. Будет разработана продуманная для Вас планировка рассчитанная для комфортного проживания.
Также вы можете построить дом самостоятельно, заказав у нас только материалы (смотрите товары) или услуги по проектированию, технадзору.














