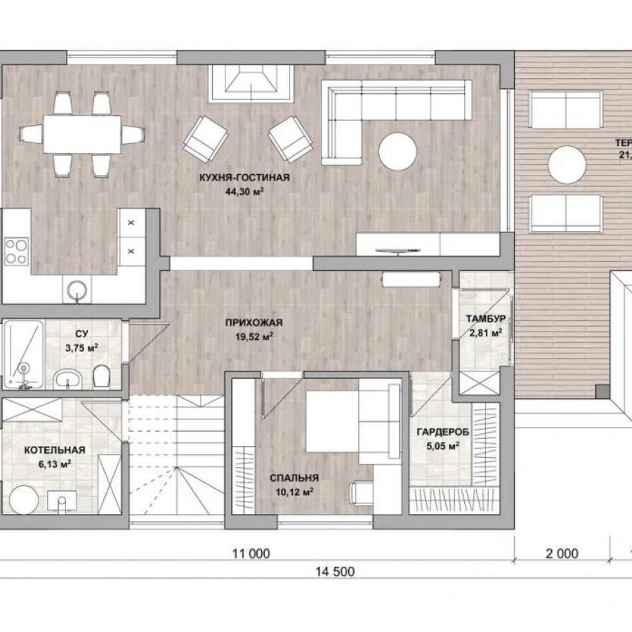
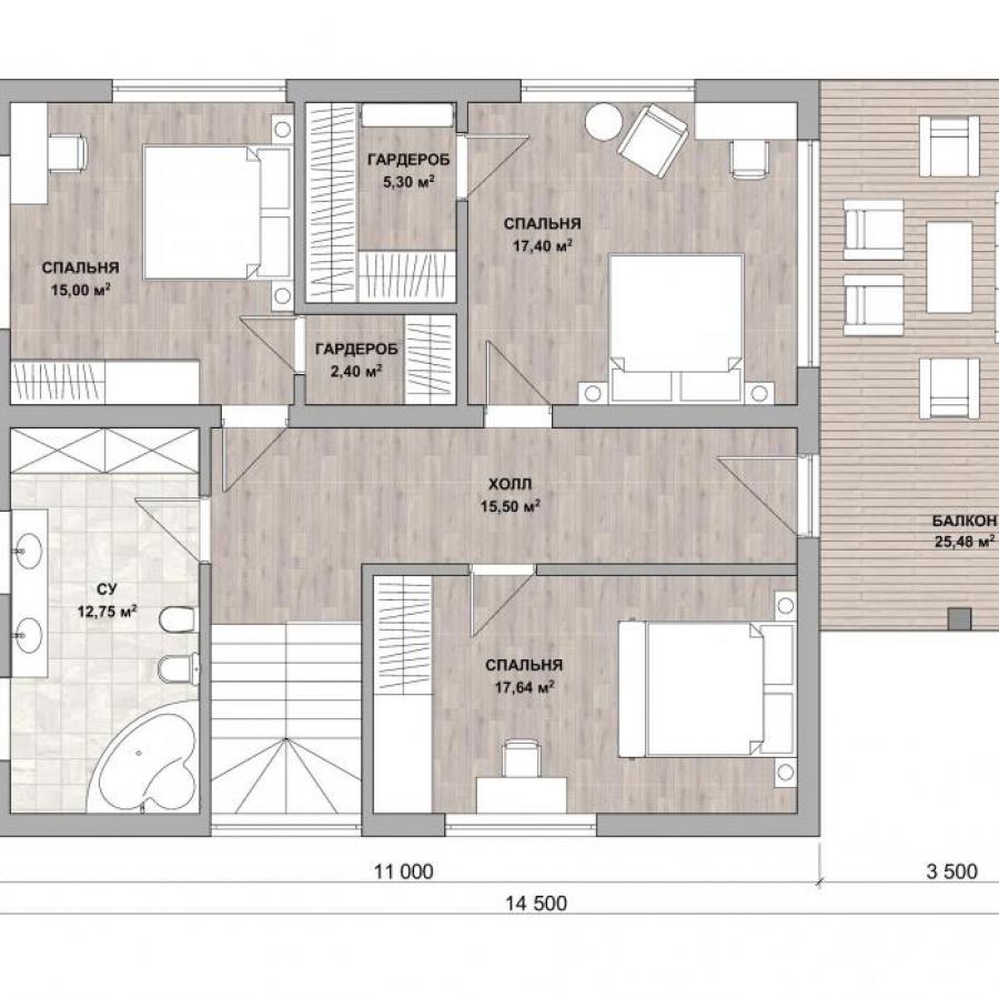
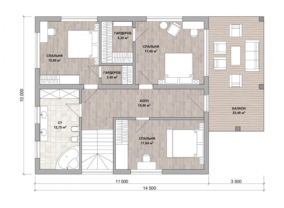
О проекте
- Площадь дома: 220 м2
- Габаритные размеры дома 10 м х 11 м
- Срок строительства: 30 дней
Проект большого дома с полным набором удобств для круглогодичного автономного проживания семьи из 5-8 человек. Предусмотрены терраса и балкон, котельная и 2 ванные комнаты, огромная гостиная с камином и кухней в нише. Панорамное остекление на обоих этажах. 4 спальни, 3 гардеробные, просторные светлые холлы. В доме есть всё, о чём только можно мечтать. Отлично подойдёт для размеренной загородной жизни, станет оазисом спокойствия в городе.
В данную стоимость входит строительство конструктива дома в базовой комплектации:
- Фундамент - ленточный;
- Наружные и внутренние несущие стены из арболитовых блоков толщиной 300 мм на теплом кладочном растворе;
- Перекрытия - деревянные балки;
- Кровля - металлочерепица;
На строительство дома мы предлагаем Вам беспроцентную рассрочку платежа, ипотеку и возможность реализовать материнский капитал.
Все работы по договору Вы оплачиваете поэтапно, в подарок от нас Вы получаете проект дома и межэтажную лестницу.
Наши архитекторы разместят дом на земельном участке в соответствии с ориентацией по сторонам света. Будет разработана продуманная для Вас планировка рассчитанная для комфортного проживания.
Также вы можете построить дом самостоятельно, заказав у нас только материалы (смотрите товары) или услуги по проектированию, технадзору.














