О проекте
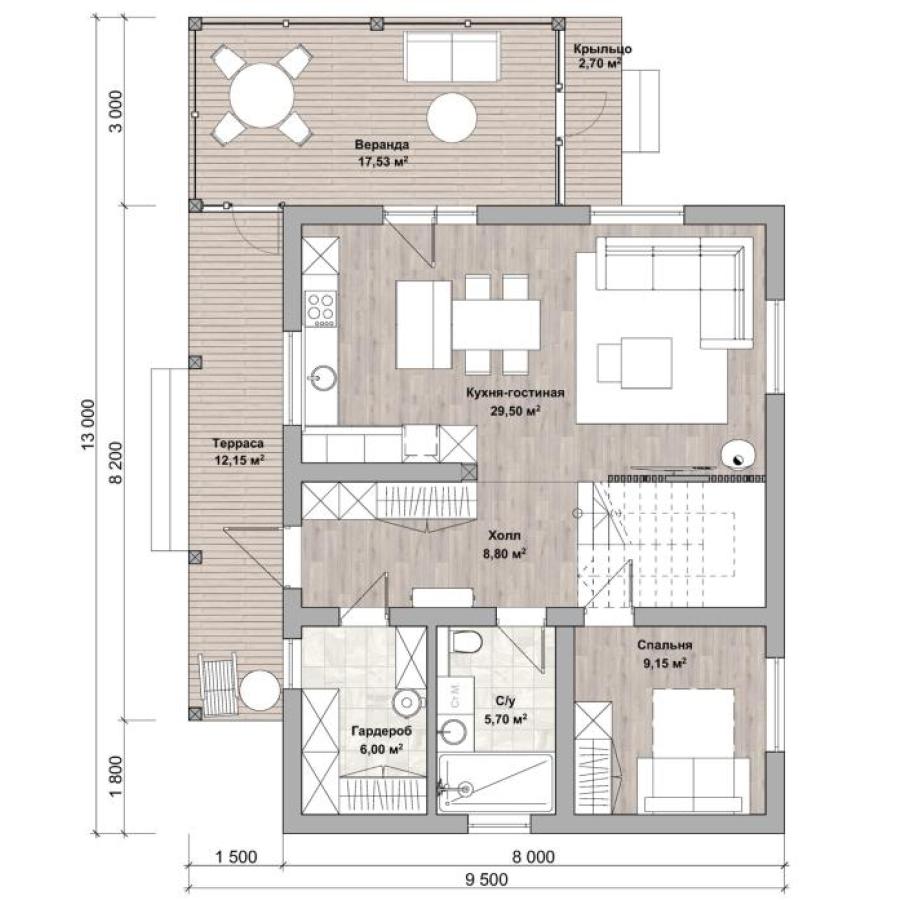
- Площадь дома: 160 м2
- Габаритные размеры дома 10 м х 8 м
- Срок строительства: 30 дней
Проект двухэтажного дома для большой гостеприимной семьи. В здании предусмотрены 4 спальни на втором этаже и 1 на первом, 2 ванные комнаты и котельная с местами для хранения. В просторной гостиной слева находится кухня с “островом”, справа диванное царство для общения, приёма гостей, отдыха. 4 окна делают комнату визуально светлее, а выход на застеклённую террасу позволит любоваться окрестностям круглый год. Проект идеален для видового участка на берегу реки, склоне. Там его потенциал раскроется полностью.
- В данную стоимость входит строительство конструктива дома в базовой комплектации:
- Фундамент - ленточный;
- Наружные и внутренние несущие стены из арболитовых блоков толщиной 300 мм на теплом кладочном растворе;
- Перекрытия - деревянные балки;
- Кровля - металлочерепица;
- На строительство дома мы предлагаем Вам беспроцентную рассрочку платежа, ипотеку и возможность реализовать материнский капитал.
Все работы по договору Вы оплачиваете поэтапно, в подарок от нас Вы получаете проект дома и межэтажную лестницу.Наши архитекторы разместят дом на земельном участке в соответствии с ориентацией по сторонам света. Будет разработана продуманная для Вас планировка рассчитанная для комфортного проживания.
Также вы можете построить дом самостоятельно, заказав у нас только материалы (смотрите товары) или услуги по проектированию, технадзору.














