О проекте
- Площадь дома: 186,7 м2
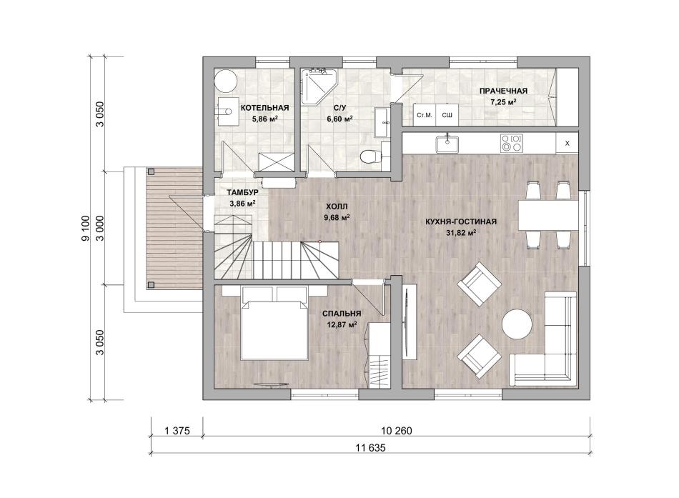
- Габаритные размеры дома 10,26 м х 9,1 м
- Срок строительства: 30 дней
Проект дома с 4 спальнями – находка для тех, кто ищет жильё с перспективой. Кабинет позволит качественно работать удалённо от офиса. При необходимости он послужит ещё одной спальней. Гостиная совмещена с зоной столовой и кухней. Предусмотрены две ванные комнаты и отдельные помещения под прачечную и котельную. Проект подойдёт для круглогодичного комфортного проживания большой дружной семьи в городе и на загородном участке.
В данную стоимость входит строительство конструктива дома в базовой комплектации: - Фундамент - ленточный;
- Наружные и внутренние несущие стены из арболитовых блоков толщиной 300 мм на теплом кладочном растворе;
- Перекрытия - деревянные балки;
- Кровля - металлочерепица;
-
На строительство дома мы предлагаем Вам беспроцентную рассрочку платежа, ипотеку и возможность реализовать материнский капитал.
Все работы по договору Вы оплачиваете поэтапно, в подарок от нас Вы получаете проект дома и межэтажную лестницу.
Наши архитекторы разместят дом на земельном участке в соответствии с ориентацией по сторонам света. Будет разработана продуманная для Вас планировка рассчитанная для комфортного проживания.
Также вы можете построить дом самостоятельно, заказав у нас только материалы (смотрите товары) или услуги по проектированию, технадзору.














