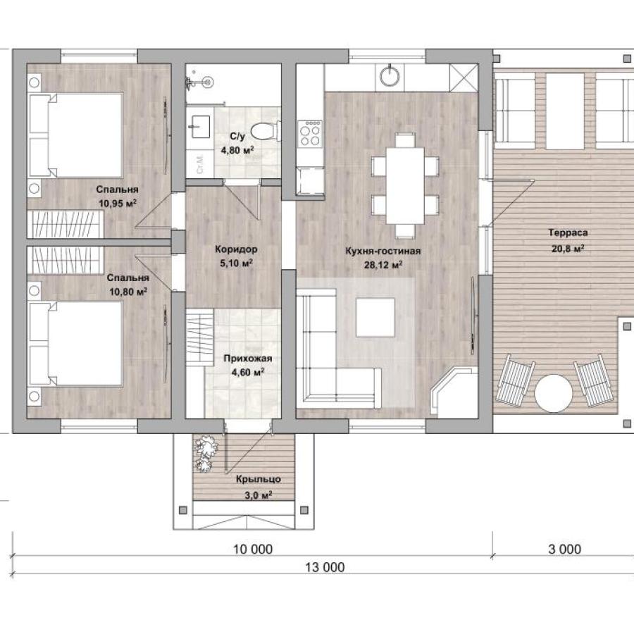
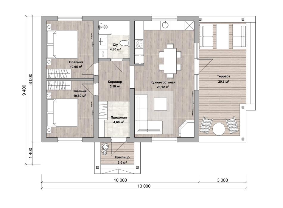
О проекте
- Площадь дома: 80 м2
- Габаритные размеры дома 8 м х 10 м
- Срок строительства: 30 дней
Проект бюджетного, уютного, эргономичного одноэтажного дома. Полный набор удобств и удачный внешний вид. В доме 2 спальни, ванная, вместительный коридор. Правую половину здания занимает гостиная с окнами на 3 стороны. Предусмотрен угловой камин – настоящая роскошь. Через трехстворчатое панорамное окно есть выход на просторную крытую террасу. По площади дом схож с “евротрёшкой”, по наполнению – превосходит её по многим статьям. Отлично впишется в городской, дачный участок. Подойдёт для семьи из 2-4 человек.
- В данную стоимость входит строительство конструктива дома в базовой комплектации:
- Фундамент - ленточный;
- Наружные и внутренние несущие стены из арболитовых блоков толщиной 300 мм на теплом кладочном растворе;
- Перекрытия - деревянные балки;
- Кровля - металлочерепица;
- На строительство дома мы предлагаем Вам беспроцентную рассрочку платежа, ипотеку и возможность реализовать материнский капитал.
Все работы по договору Вы оплачиваете поэтапно, в подарок от нас Вы получаете проект дома.
Наши архитекторы разместят дом на земельном участке в соответствии с ориентацией по сторонам света. Будет разработана продуманная для Вас планировка рассчитанная для комфортного проживания.
Также вы можете построить дом самостоятельно, заказав у нас только материалы (смотрите товары) или услуги по проектированию, технадзору. - Предложение носит информационный характер и не является публичной офертой.Точную цену уточняйте у менеджеров.













