О проекте
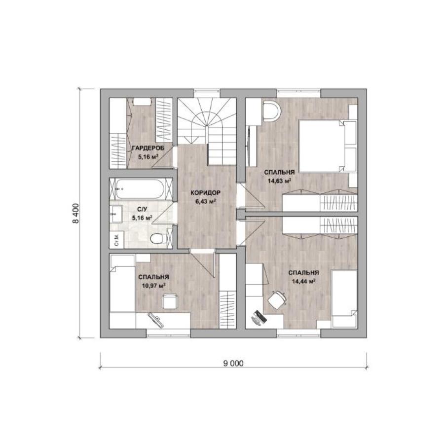
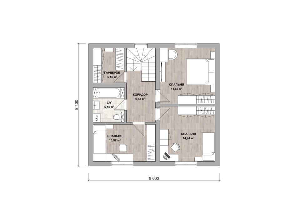
- Площадь дома: 151,2 м2
- Габаритные размеры дома 8,4 м х 9 м
- Срок строительства: 30 дней
- Двухэтажный дом с сауной – новый уровень комфорта. Совмещает в себе привычную планировку и домашнюю “душегрейку”. Большую часть первого этажа занимает кухня-гостиная с выходом на крытую террасу. Туда же ведёт вторая дверь из сауны, примыкающей к ванной. Наверху типичная планировка: 3 спальни, ванная и гардеробная. Дом подойдёт для семьи из 3-5 человек. Идеально для строения на берегу реки или озера.
В данную стоимость входит строительство конструктива дома в базовой комплектации: - Фундамент - ленточный;
- Наружные и внутренние несущие стены из арболитовых блоков толщиной 300 мм на теплом кладочном растворе;
- Перекрытия - деревянные балки;
- Кровля - металлочерепица;
-
На строительство дома мы предлагаем Вам беспроцентную рассрочку платежа, ипотеку и возможность реализовать материнский капитал.
Все работы по договору Вы оплачиваете поэтапно, в подарок от нас Вы получаете проект дома и межэтажную лестницу.
Наши архитекторы разместят дом на земельном участке в соответствии с ориентацией по сторонам света. Будет разработана продуманная для Вас планировка рассчитанная для комфортного проживания.
Также вы можете построить дом самостоятельно, заказав у нас только материалы (смотрите товары) или услуги по проектированию, технадзору.














