О проекте
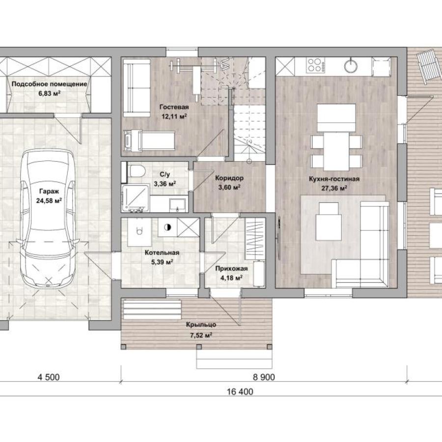
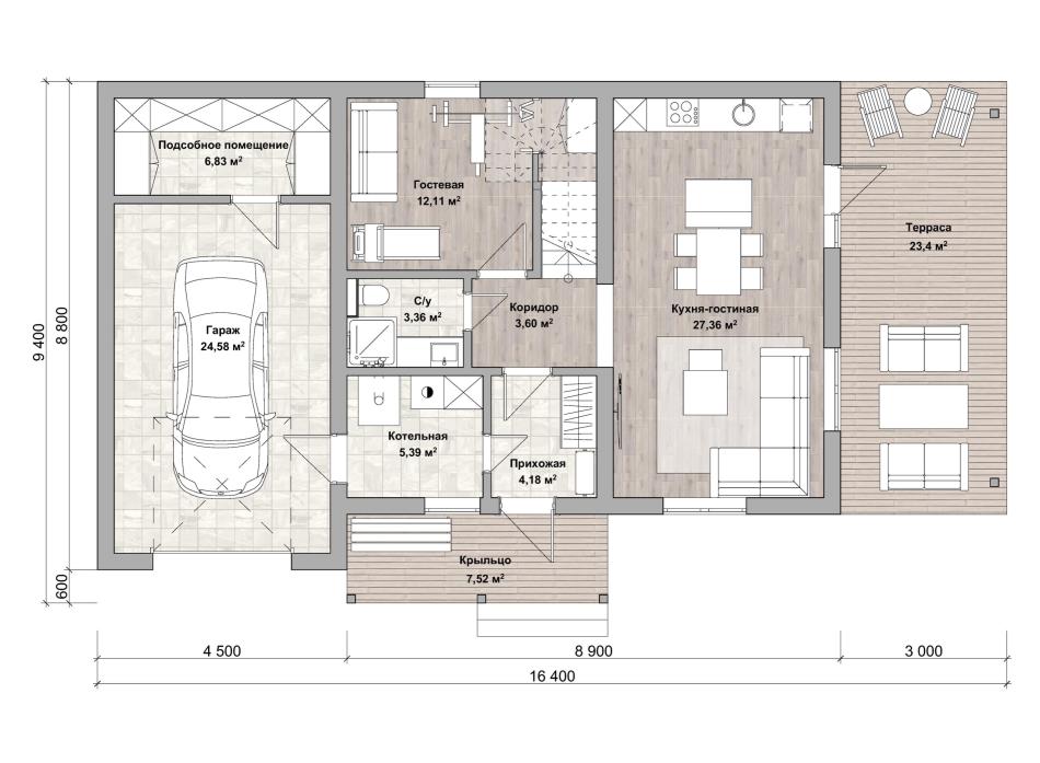
- Площадь дома: 144 м2
- Габаритные размеры дома 7,8 м х 9,2 м
- Срок строительства: 30 дней
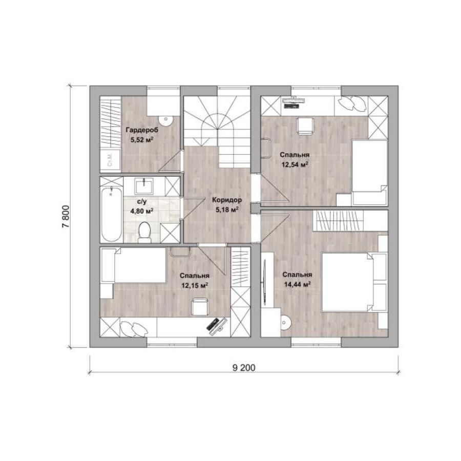
Проект двухэтажного дома с гаражом и террасой. Всё продумано для комфортного и безопасного проживания семьи из 4-6 человек. В гараже расположена вместительная кладовая. К машине можно пройти через котельную, не выходя из дома. Оба входа в здание заботливо укрыты навесами. На первом этаже гостевая спальня, ванная и светлая гостиная-кухня с выходом на террасу. Наполнение верхнего уровня классическое – 3 хозяйские спальни, вторая ванная и гардеробная.
- В данную стоимость входит строительство конструктива дома в базовой комплектации:
- Фундамент - ленточный;
- Наружные и внутренние несущие стены из арболитовых блоков толщиной 300 мм на теплом кладочном растворе;
- Перекрытия - деревянные балки;
- Кровля - металлочерепица;
- На строительство дома мы предлагаем Вам беспроцентную рассрочку платежа, ипотеку и возможность реализовать материнский капитал.
Все работы по договору Вы оплачиваете поэтапно, в подарок от нас Вы получаете проект дома и межэтажную лестницу.
Наши архитекторы разместят дом на земельном участке в соответствии с ориентацией по сторонам света. Будет разработана продуманная для Вас планировка рассчитанная для комфортного проживания.
Также вы можете построить дом самостоятельно, заказав у нас только материалы (смотрите товары) или услуги по проектированию, технадзору.














