О проекте
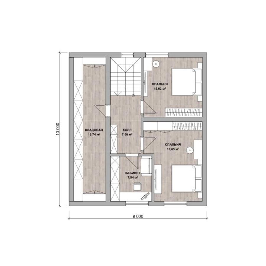
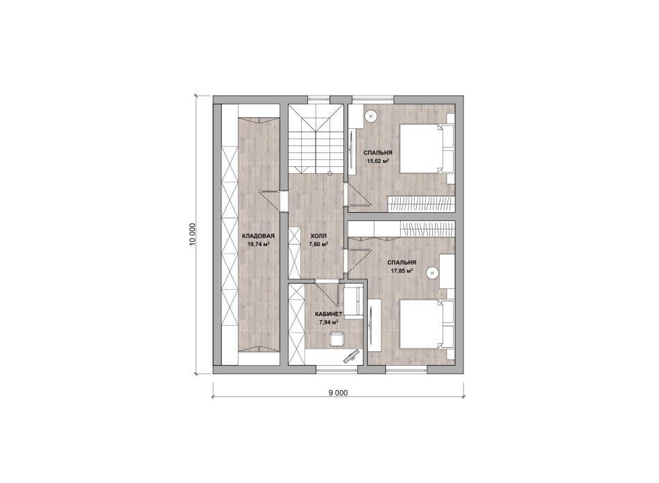
- Площадь дома: 180 м2
- Габаритные размеры дома 9 м х 10 м
- Срок строительства: 30 дней
Обычный дом стал необыкновенным благодаря большой застеклённой веранде. Появилась дополнительная гостиная – светлая, лёгкая, с панорамным обзором. Дальше небольшая прихожая, раздельные санузлы, квадратная гостиная с кухонным «островом». 3 просторные спальни, кабинет и длинная, во весь дом кладовая. Проект подойдёт семье из 4-6 человек для круглогодичного комфортного проживания.
В данную стоимость входит строительство конструктива дома в базовой комплектации:
- Фундамент - ленточный;
- Наружные и внутренние несущие стены из арболитовых блоков толщиной 300 мм на теплом кладочном растворе;
- Перекрытия - деревянные балки;
- Кровля - металлочерепица;
На строительство дома мы предлагаем Вам беспроцентную рассрочку платежа, ипотеку и возможность реализовать материнский капитал.
Все работы по договору Вы оплачиваете поэтапно, в подарок от нас Вы получаете проект дома и межэтажную лестницу.
Наши архитекторы разместят дом на земельном участке в соответствии с ориентацией по сторонам света. Будет разработана продуманная для Вас планировка рассчитанная для комфортного проживания.
Также вы можете построить дом самостоятельно, заказав у нас только материалы (смотрите товары) или услуги по проектированию, технадзору.














