О проекте
- Площадь дома: 161,5 м2
- Габаритные размеры дома 8,5 м х 9,5 м
- Срок строительства: 30 дней
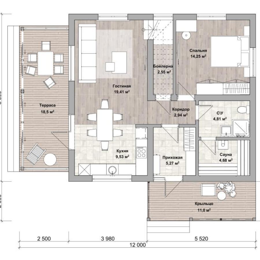
Проект для гостеприимной семьи из 3–5 человек. Или наоборот – для интровертов, которые любят уединение и комфорт. Подойдёт для загородного отдыха, круглогодичного проживания в городе. На каждом этаже своя гостиная, 3 спальни, 2 ванные, гардеробная, 2 террасы, бойлерная и прихожая. В санузел первого этажа обустроена сауна. К гостиной с кухонной нишей примыкает терраса-трансформер. Она может быть открытой или закрываться стеклянными дверями, превращаясь в изолированную комнату.
- В данную стоимость входит строительство конструктива дома в базовой комплектации:
- Фундамент - ленточный;
- Наружные и внутренние несущие стены из арболитовых блоков толщиной 300 мм на теплом кладочном растворе;
- Перекрытия - деревянные балки;
- Кровля - металлочерепица;
- На строительство дома мы предлагаем Вам беспроцентную рассрочку платежа, ипотеку и возможность реализовать материнский капитал.
Все работы по договору Вы оплачиваете поэтапно, в подарок от нас Вы получаете проект дома и межэтажную лестницу.
Наши архитекторы разместят дом на земельном участке в соответствии с ориентацией по сторонам света. Будет разработана продуманная для Вас планировка рассчитанная для комфортного проживания.
Также вы можете построить дом самостоятельно, заказав у нас только материалы (смотрите товары) или услуги по проектированию, технадзору.














