О проекте
- Площадь дома: 140,40 м2
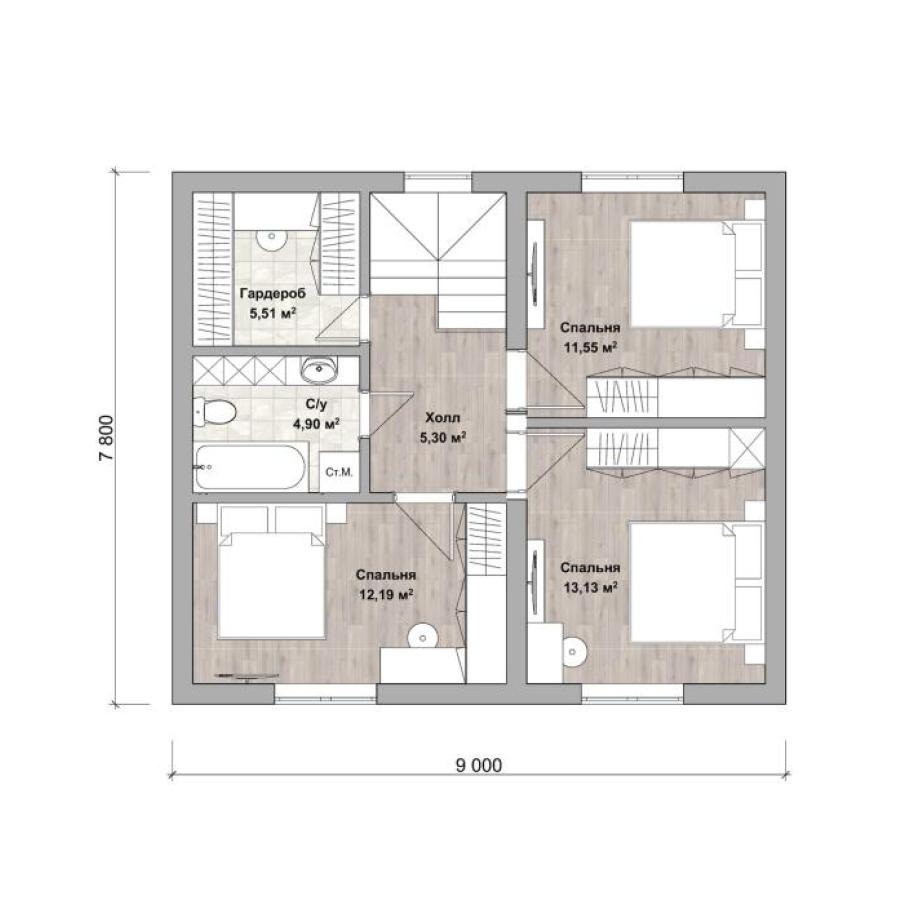
- Габаритные размеры дома 7,8 м х 9 м
- Срок строительства: 30 дней
Проект двухэтажного дома для семьи из 4-6 человек. Рассчитан на круглогодичное проживание. Небольшое здание с классической планировкой. Большую часть первого этажа занимает гостиная-кухня с выходом на крытую террасу. Здесь же гостевая спальня, ванная и котельная с запасным выходом. На втором этаже разместились 3 спальни, гардеробная и вторая ванная. Всё чётко, эргономично, но с полным набором удобств для любимой семьи.
- В данную стоимость входит строительство конструктива дома в базовой комплектации:
- Фундамент - ленточный;
- Наружные и внутренние несущие стены из арболитовых блоков толщиной 300 мм на теплом кладочном растворе;
- Перекрытия - деревянные балки;
- Кровля - металлочерепица;
- На строительство дома мы предлагаем Вам беспроцентную рассрочку платежа, ипотеку и возможность реализовать материнский капитал.
Все работы по договору Вы оплачиваете поэтапно, в подарок от нас Вы получаете проект дома и межэтажную лестницу.
Наши архитекторы разместят дом на земельном участке в соответствии с ориентацией по сторонам света. Будет разработана продуманная для Вас планировка рассчитанная для комфортного проживания.
Также вы можете построить дом самостоятельно, заказав у нас только материалы (смотрите товары) или услуги по проектированию, технадзору.














