О проекте
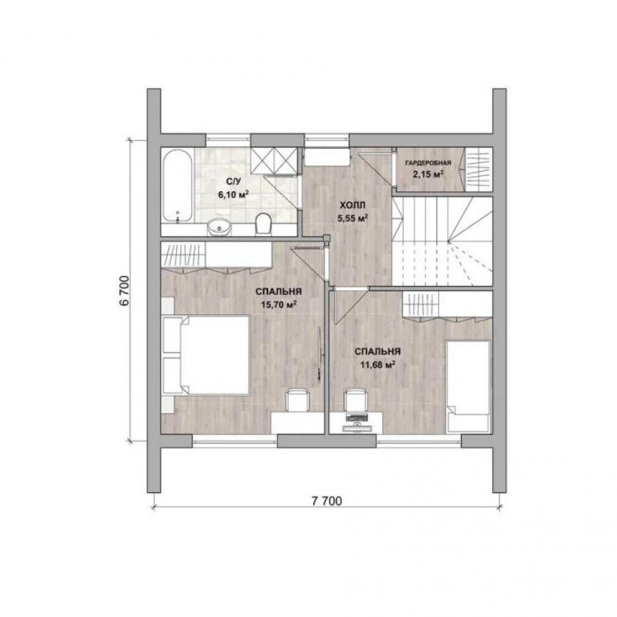
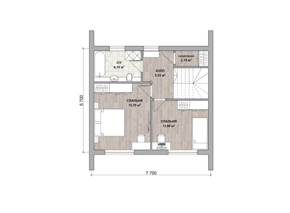
- Площадь дома: 103 м2
- Габаритные размеры дома 7,7 м х 6,7 м
- Срок строительства: 30 дней
Проект дома в стиле барнхаус. Отличный вариант для молодой семьи из 2-4 человек, для любителей лаконичных решений. Подойдёт для дачного, небольшого городского участка, пригоден для круглогодичного проживания. На первом этаже просторная кухня-гостиная с панорамным остеклением и выходом на террасу, котельная и гардеробная. Наверху расположены 2 спальни, большая ванная и вторая гардеробная. Окна второго этажа повторяют линию крыши, улучшают освещение помещений, украшают фасады.
В данную стоимость входит строительство конструктива дома в базовой комплектации:
- Фундамент - ленточный;
- Наружные и внутренние несущие стены из арболитовых блоков толщиной 300 мм на теплом кладочном растворе;
- Перекрытия - деревянные балки;
- Кровля - металлочерепица;
На строительство дома мы предлагаем Вам беспроцентную рассрочку платежа, ипотеку и возможность реализовать материнский капитал.
Все работы по договору Вы оплачиваете поэтапно, в подарок от нас Вы получаете проект дома и межэтажную лестницу.
Наши архитекторы разместят дом на земельном участке в соответствии с ориентацией по сторонам света. Будет разработана продуманная для Вас планировка рассчитанная для комфортного проживания.
Также вы можете построить дом самостоятельно, заказав у нас только материалы (смотрите товары) или услуги по проектированию, технадзору.














