О проекте
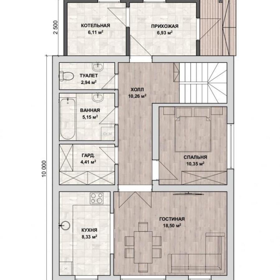
- Площадь дома: 152 м2
- Габаритные размеры дома 10 м х 8 м
- Срок строительства: 30 дней
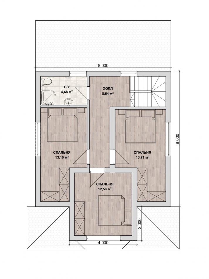
Дом с мезонином. В наши дни там будут жить не герои Тургенева или Чехова, а обычная семья из 4-6 человек. Внешне здание выглядит как постройка позапрошлого века. Даже окна стилизованы под старину. Внутри есть всё для комфортного проживания. Котельная в пристройке обеспечит дом теплом и горячей водой. Четыре спальни позаботятся о полноценном отдыхе хозяев и гостей. Гостиная с роскошным центральным окном примет друзей, соберёт за большим обеденным столом всю семью. Кухня предусмотрительно отделена, чтобы запахи готовящейся еды не покидали её пределов. Три санузла и гардеробная, просторные холлы, большие окна – всё для удобства жильцов. Дом с мезонином станет настоящим семейным гнездом, гармонично впишется в городской и сельской пейзаж.
В данную стоимость входит строительство конструктива дома в базовой комплектации:
- Фундамент - ленточный;
- Наружные и внутренние несущие стены из арболитовых блоков толщиной 300 мм на теплом кладочном растворе;
- Перекрытия - деревянные балки;
- Кровля - металлочерепица;
На строительство дома мы предлагаем Вам беспроцентную рассрочку платежа, ипотеку и возможность реализовать материнский капитал.
Все работы по договору Вы оплачиваете поэтапно, в подарок от нас Вы получаете проект дома и межэтажную лестницу.
Наши архитекторы разместят дом на земельном участке в соответствии с ориентацией по сторонам света. Будет разработана продуманная для Вас планировка рассчитанная для комфортного проживания.
Также вы можете построить дом самостоятельно, заказав у нас только материалы (смотрите товары) или услуги по проектированию, технадзору.














