О проекте
- Площадь дома: 112 м2
- Габаритные размеры дома: 7 м х 8 м
- Срок строительства: 30 дней
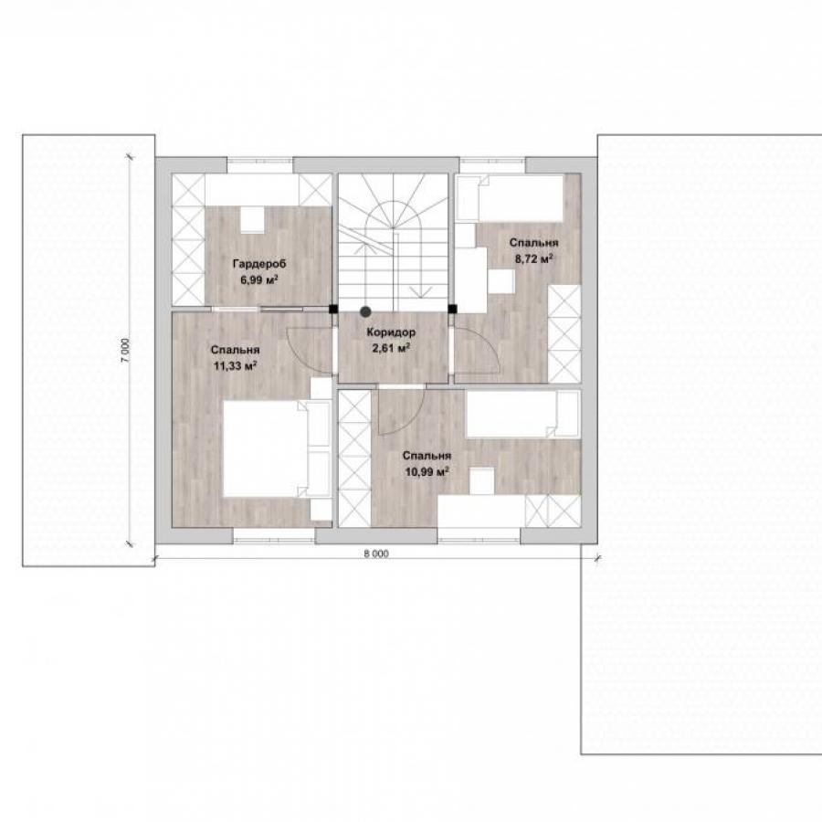
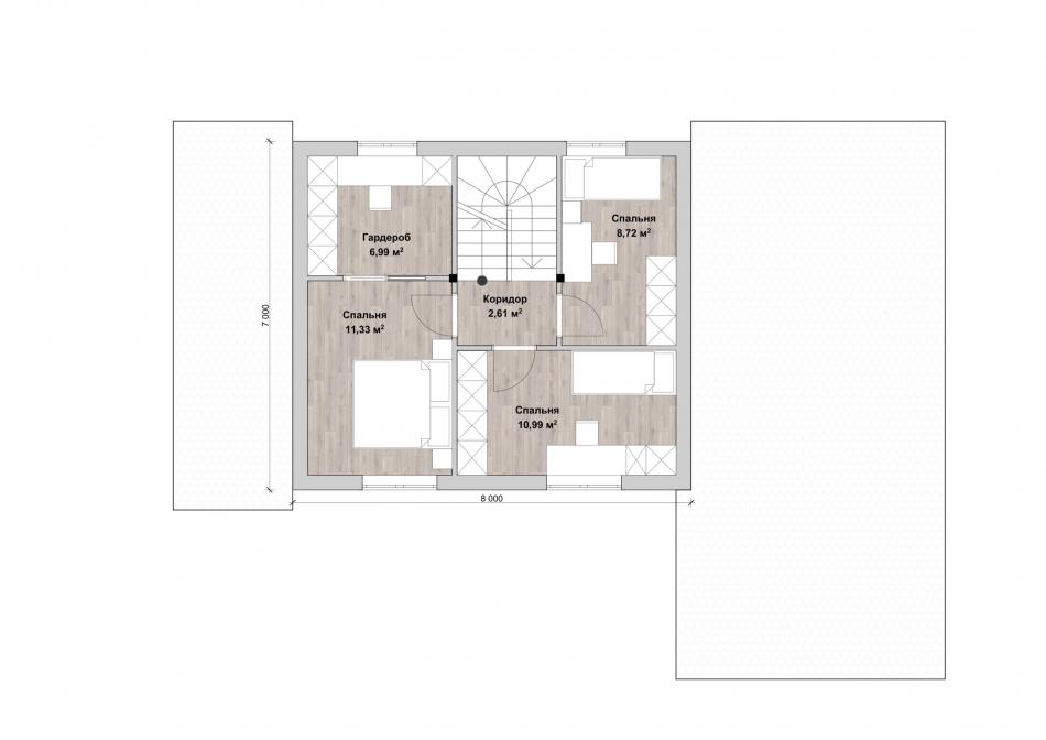
Бюджетный, уютный дом с гаражом и двумя террасами. Подойдёт для постоянного проживания молодой семьи или для дачи. Крытая терраса закрывает вход от осадков. Через небольшую прихожую попадаем в кухню-гостиную с видом на парадный въезд и террасу. Слева от входа котельная, лестница наверх, раздельные санузлы. На втором этаже расположены три небольшие спальни. Одна из них с гардеробной. По желанию эта комната с окном может использоваться как кабинет, игровая, мастерская. За домом спрятана терраса с небольшим навесом и камином – отличное место для досуга.
В данную стоимость входит строительство конструктива дома в базовой комплектации:
- Фундамент - ленточный;
- Наружные и внутренние несущие стены из арболитовых блоков толщиной 300 мм на теплом кладочном растворе;
- Перекрытия - деревянные балки;
- Кровля - металлочерепица;
-
На строительство дома мы предлагаем Вам беспроцентную рассрочку платежа, ипотеку и возможность реализовать материнский капитал.
Все работы по договору Вы оплачиваете поэтапно, в подарок от нас Вы получаете проект дома и межэтажную лестницу.
Наши архитекторы разместят дом на земельном участке в соответствии с ориентацией по сторонам света. Будет разработана продуманная для Вас планировка рассчитанная для комфортного проживания.
Также вы можете построить дом самостоятельно, заказав у нас только материалы (смотрите товары) или услуги по проектированию, технадзору.














