О проекте
- Площадь дома: 162 м2
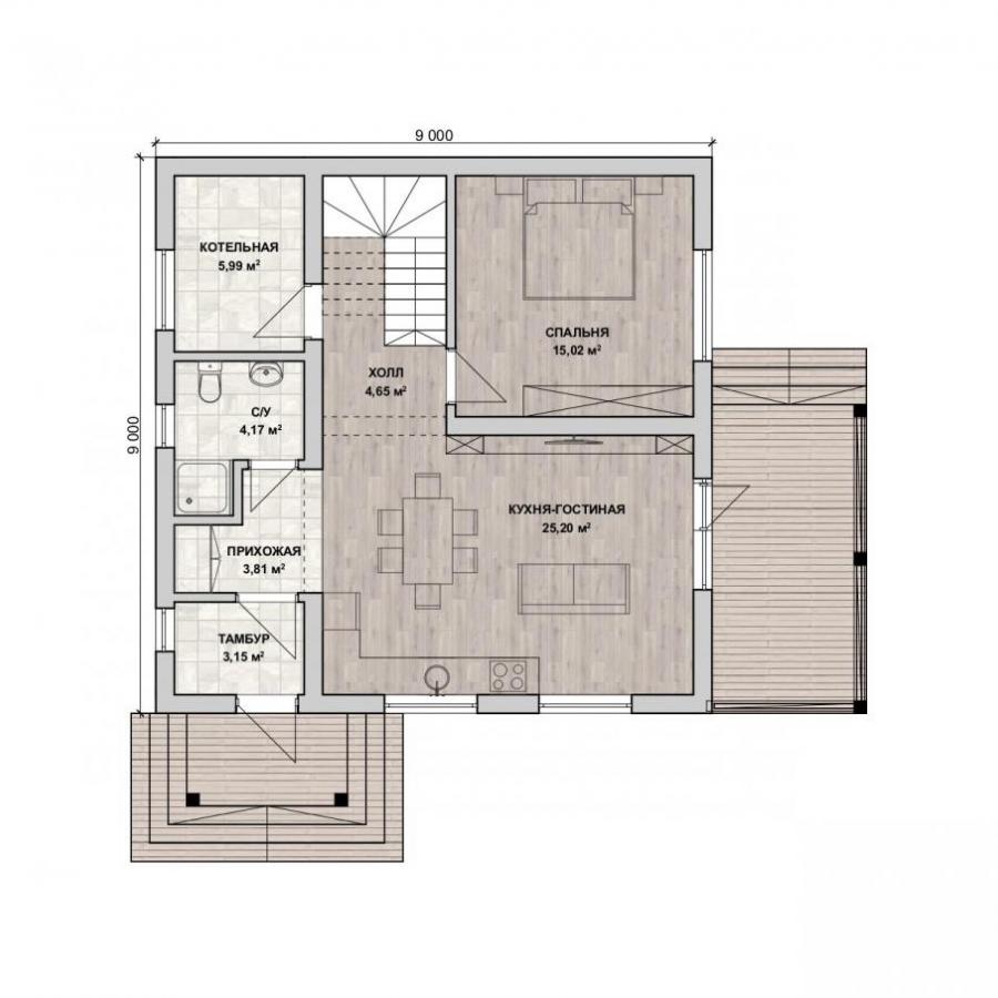
- Габаритные размеры дома 9 м х 9 м
- Срок строительства: 30 дней
Проект дома для семьи из 2-4 человек. Небольшое крыльцо с колоннами закрывает вход в дом от осадков, тамбур и котельная отвечают за микроклимат. В доме один совмещённый санузел. Кухня-гостиная достаточно просторная, хорошо освещена, из неё можно выйти на крытую террасу и в сад. Спальня рядом с гостиной приличного размера. Здесь будет особенно удобно жильцам, которым тяжело подниматься на второй этаж. Лестница наверх оснащена окном, оно наполнит светом холлы обоих этажей. Кроме двух гостевых спален на втором этаже расположен уютный кабинет, что сейчас особенно актуально. Обратите внимание на длинную кладовку, она тянется вдоль всего дома. Подсобное помещение низкое, но функциональное.
В данную стоимость входит строительство конструктива дома в базовой комплектации:
- Фундамент - ленточный;
- Наружные и внутренние несущие стены из арболитовых блоков толщиной 300 мм на теплом кладочном растворе;
- Перекрытия - деревянные балки;
- Кровля - металлочерепица;
На строительство дома мы предлагаем Вам беспроцентную рассрочку платежа, ипотеку и возможность реализовать материнский капитал.
Все работы по договору Вы оплачиваете поэтапно, в подарок от нас Вы получаете проект дома и межэтажную лестницу.
Наши архитекторы разместят дом на земельном участке в соответствии с ориентацией по сторонам света. Будет разработана продуманная для Вас планировка рассчитанная для комфортного проживания.
Также вы можете построить дом самостоятельно, заказав у нас только материалы (смотрите товары) или услуги по проектированию, технадзору.














