О проекте
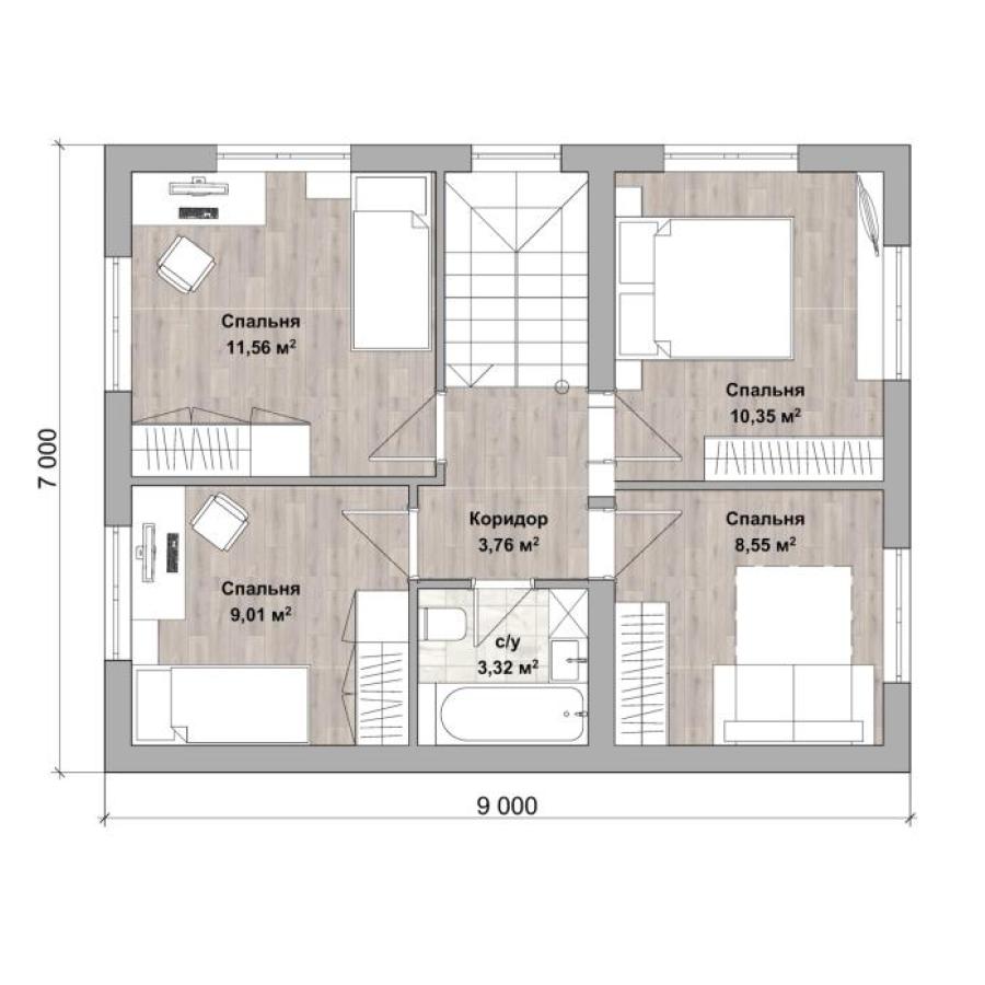
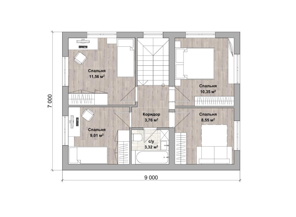
- Площадь дома: 126 м2
- Габаритные размеры дома 7 м х 9 м
- Срок строительства: 30 дней
Дом с 5 спальнями – находка для круглогодичного проживания семьи из 5-7 человек. Эргономичная планировка, полный набор удобств, уютная кухня-гостиная делают скромное по площади здание воплощением мечты. Крытая терраса удваивает площадь гостиной. Заметен акцент на личном пространстве. Одна из спален внизу, 4 других наверху. На обоих этажах есть санузлы, у входа устроена котельная. В этом доме всегда будет нужная температура, горячая вода и тёплая семейная атмосфера.
- В данную стоимость входит строительство конструктива дома в базовой комплектации:
- Фундамент - ленточный;
- Наружные и внутренние несущие стены из арболитовых блоков толщиной 300 мм на теплом кладочном растворе;
- Перекрытия - деревянные балки;
- Кровля - металлочерепица;
- На строительство дома мы предлагаем Вам беспроцентную рассрочку платежа, ипотеку и возможность реализовать материнский капитал.
Все работы по договору Вы оплачиваете поэтапно, в подарок от нас Вы получаете проект дома и межэтажную лестницу.
Наши архитекторы разместят дом на земельном участке в соответствии с ориентацией по сторонам света. Будет разработана продуманная для Вас планировка рассчитанная для комфортного проживания.Также вы можете построить дом самостоятельно, заказав у нас только материалы (смотрите товары) или услуги по проектированию, технадзору.














