Друзья, вы не представляете, как сложно удерживать цены, когда вокруг дорожает абсолютно всё. А у нас это получается. До конца месяца точно контролируем ситуацию и ценники, хотя они ведут себя просто развязно. Буквально рвутся на свободу как крышка от шампанского на свадьбе.
Для самых проворных читателей у нас предложение.
Воспользуйтесь им до 30 августа и мы построим на вашем участке этот одноэтажный дом по типовому проекту практически по прошлогодним расценкам. Ниже цены уже не будет, а выше – скоро.
Пока инфляция бьёт рекорды и обесценивает накопления, самое время вложить деньги в недвижимость.
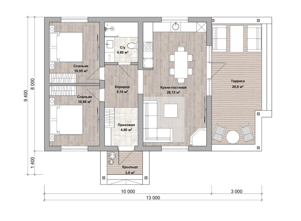
Площадь дома 80 м².
Размер 8 х 10 по внешним стенам
Цена коробки 3.950.000 р.
Цена под чистовую отделку 7.980.000 р.
О подробностях уточняйте у наших специалистов звоните нам.



