“Ох, я так хочу свой дом, но даже браться за стройку боюсь. Как подумаю, сколько хлопот”, – частенько мы слышим такие слова. Что же делать?Выход есть. Можно купить уже готовый дом. Совсем готовый, под ключ, заезжай и живи. Ни тебе пыли и грязи, ни проблем с разрешениями и исполнителями.Представляете эти чувства, когда можете себе позволить покупку такого уровня? Просто приедете, посмотрите и скажете: “Беру”. И никакой паники. А что волноваться, когда уже всё сделано, документально оформлено, подключено?Правильно, радоваться надо, а не переживать. Тем более, что такой дом мы сейчас достраиваем в Вологде. Приступаем к отделочным работам. Наводим марафет внутри и снаружи.Подробнее про дом:
• 5 минут до центра,
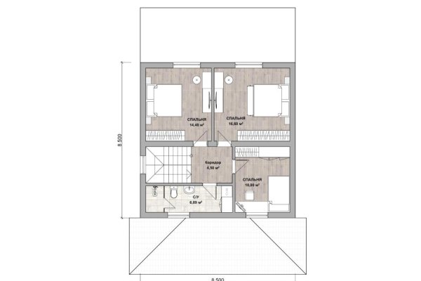
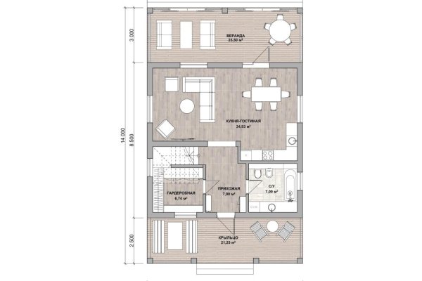
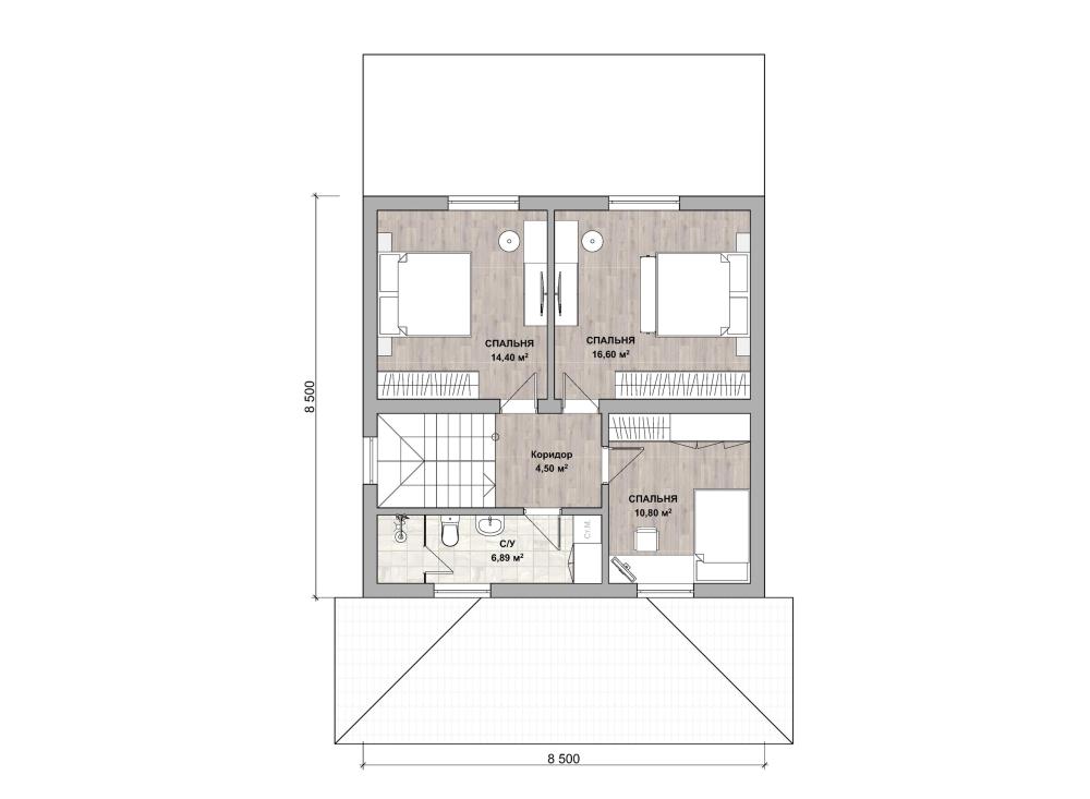
• габариты 8,5 м х 8,5 м,
• площадь 120м²,
• 2 крытые террасы, одна из них – застеклённая.Комплектация:
• фундамент – утеплённая плита,
• стены из арболита толщиной 30 см на тёплом кладочном растворе,
• тёплая штукатурка внешних и внутренних стен,
• кровельный материал – металлочерепица,
• окна – профиль 72, двухкамерный стеклопакет с энергосбережением,
• лестница на второй этаж на металлическом основании.Коммуникации:
• газ,
• центральное водоснабжение,
• канализация,
• электрика,
• сантехника.Купить можно прямо сейчас, не дожидаясь, когда всё будет готово полностью. Тогда у вас будет возможность заранее выбрать и заказать мебель, технику и текстиль.Вы просто шагнёте из одной жизни в другую, в просторный и уютный особнячок с 2 террасами. Здесь будут расти ваши дети. Здесь станут возможными новые планы и решения.Измените свою жизнь с Первый Арболитовый Завод. Купите готовый дом без малейшей паники и живите в нём долго и счастливо.







